Аренда офиса, 225 м² , Гостиничный проезд 6к2
Площадь: 225 м²
Цена аренды:
280 000 руб./мес
Цена:
1 245 руб./м²/мес

Гостиничный проезд, дом
6к2,
Москва,
Россия
м. Окружная (1 мин.)
- Контактные данные
- +7 (958) 75X-XX-XX
Об объекте
- Административный округ
- Северо-Восточный административный округ
Описание объекта
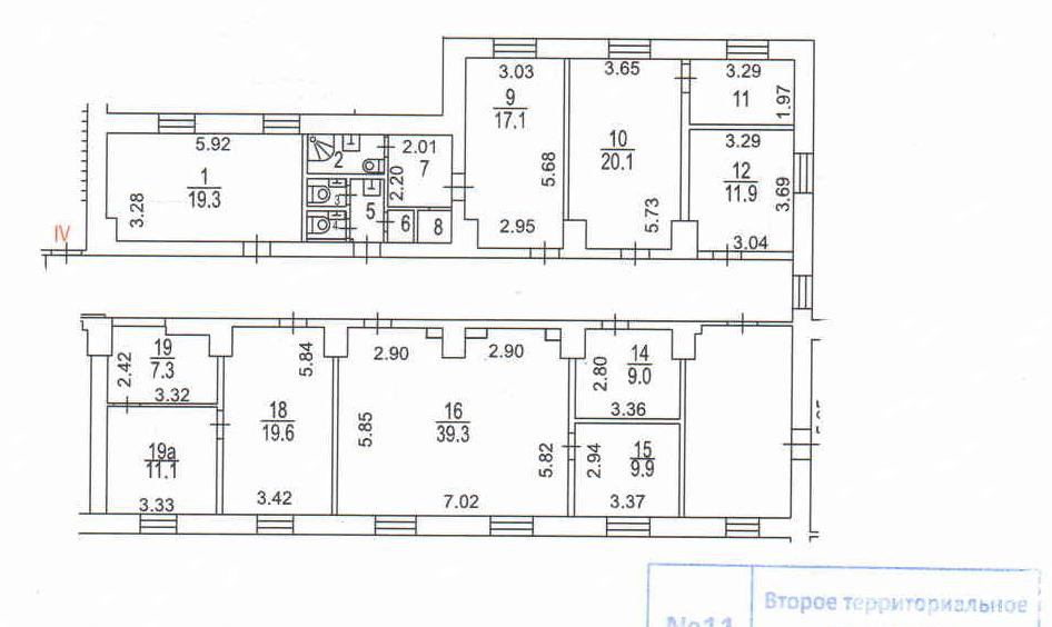
Сдам офис 225 м2 в бизнес-центре класса B у метро Окружная. Дизайнерский ремонт, 12 кабинетов,
Цена: 280 000 в месяц (14 933 /м2/год)
Адрес: Москва, Гостиничный проезд, 6к2 (район Марфино, СВАО)
Этаж: 5 из 5
Площадь: 225 м2
Локация и транспорт
Офис расположен в непосредственной близости от транспортного узла:
Метро: 1 минута пешком до станции Окружная (Люблинско-Дмитровская линия).
МЦД: Станция Окружная МЦД-1 (D1) в шаговой доступности.
ТТК: Удобный выезд на Третье транспортное кольцо и Дмитровское шоссе.
Бизнес-центр и инфраструктура
Класс: Бизнес-центр класса B.
Управление: Прямая аренда от собственника (ИФНС №15).
Безопасность и доступ: Круглосуточная охрана, свободный доступ в здание 24/7.
Лифт: Есть.
Всё рядом: На территории/в здании работают аптека, кафе, медицинский центр, ресторан.
Характеристики помещения
Планировка: Смешанная (коридорная система + 12 отдельных кабинетов).
Состояние: Очень хорошее, дизайнерский ремонт. Косметическое обновление не требуется.
Высота потолков: 3 метра.
Окна: Пластиковые, панорамное остекление. Окна выходят на две стороны (во двор и на улицу) — отличная естественная освещенность.
Отделка: На полу качественный ламинат.
Вентиляция и климат: Оснащено сплит-системами и отдельной системой приточной вентиляции.
Санузлы: Две «мокрые точки» (санузла) внутри офиса.
Парковка
Наземная парковка у БЦ.
Выделены места для гостевых автомобилей.
Парковка предоставляется бесплатно.
Условия аренды
Ставка: 280 000 рублей в месяц.
Коммунальные платежи: Оплачиваются отдельно (по счетчикам, согласно договору с управляющей компанией).
Минимальный срок аренды: 11 месяцев.
Схема оплаты: Предоплата за 1 месяц страховой депозит за последний месяц.
Юридический адрес: Предоставляется (возможность постановки на учет).
Доступ: Свободный, круглосуточный.
Освобождение: Помещение освобождается в апреле (можно согласовать просмотр заранее).
Преимущества офиса
Готовый бизнес-офис: Не нужно делать ремонт — 12 кабинетов и коридор уже выполнены в дизайнерском стиле. Отдельно сдача не рассматривается.
Климат-контроль: Своя приточная вентиляция и сплит-системы в каждом помещении.
Транспорт: Реальная пешая доступность от метро (менее 100 метров).
Удобство: Два санузла внутри, бесплатная парковка, круглосуточный доступ.[#8092663#]
Гостиничный проезд, дом 6к2, Москва, Россия
Цена аренды:
280 000 руб./мес
Общая площадь:225 м²




















