Аренда магазина, 41 м² , Павелецкая площадь 1Ас1
Площадь: 41 м²
Цена аренды:
700 000 руб./мес
Цена:
17 074 руб./м²/мес

Павелецкая площадь, дом
1Ас1,
Москва,
Россия
м. Павелецкая (1 мин.)
- Контактные данные
- +7 (980) 96X-XX-XX
Об объекте
- Административный округ
- Центральный административный округ
Описание объекта
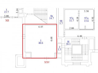
Сдам в аренду помещение в торговом комплексе площадью 40.6 кв.м, в субаренду, на любой срок с предоплатой за 1 месяц, с возможностью арендных каникул, юридический адрес не предоставляется. Помещение располагается в 3-этажном административном здании класса A в 1 мин. пешком от м.Павелецкая, район города - Замоскворечье.
Помещение располагается на 1 этаже здания.
Возможное назначение помещения - магазин, высота потолков 3 м, внутри типовой ремонт, на полу плитка, одна мокрая точка, тип окон - витринные, окна выходят окна во двор и на улицу, здание на первой линии, здание функционирует круглосуточно, участок находится в аренде.
Внутри центральное кондиционирование, вентиляция - приточная, центральное отопление.
Доступ в здание свободный, доступ в здание круглосуточный. Вход в помещение - общий с улицы.[#8095907#]
Павелецкая площадь, дом 1Ас1, Москва, Россия
Цена аренды:
700 000 руб./мес
Общая площадь:41 м²










