Аренда помещения свободного назначения, 450 м² , улица Саляма Адиля 9к3
Площадь: 450 м²
Цена аренды:
520 000 руб./мес
Цена:
1 156 руб./м²/мес

улица Саляма Адиля, дом
9к3,
Москва,
Россия
Об объекте
- Этаж расположения помещения
- 7 этаж
- Административный округ
- Северо-Западный административный округ
Описание объекта
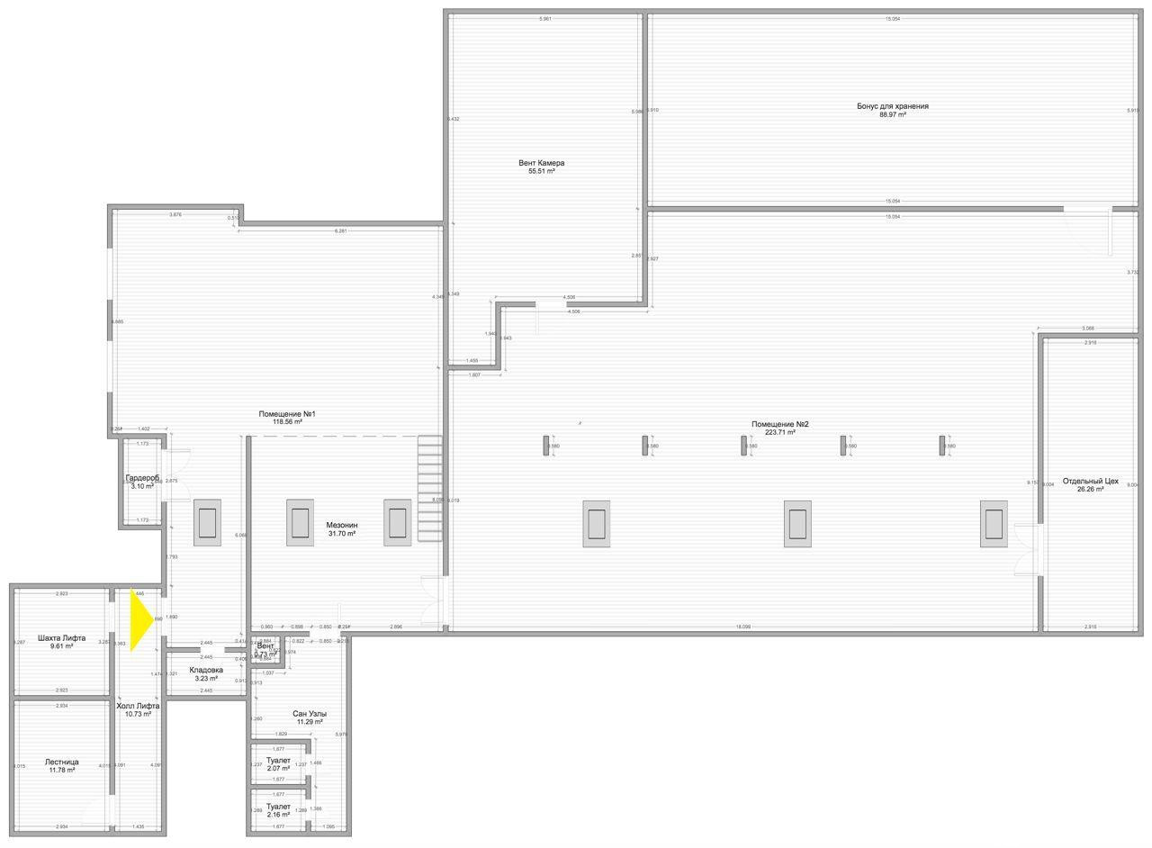
==ЛОТ 224797 == ОТ СОБСТВЕННИКА, БЕЗ КОМИССИИ. Помещение Свободного Назначения, 450кв.м. Помещение №1:125 кв. м по полу + мезонин 35кв. м., высота потолка 3. 7 - 4. 8м Помещение №2: 240 кв. м., высота потолка 1. 8 - 2. 9м Санузел 16кв. м. Этаж: 7/7 Высота потолков: 1, 8м – 4, 8м 3 фасадных окна, 6 мансардных окон Планировка: свободная, возможно разделить под любые нужды. Коммуникации: Электрическая мощность: 30 кВт (3 фазы), имеется возможность добавить 60-80 кВт, подключившись к тп здания. Дополнительно получены тех. условия на 100 кВт от моэск. Водоснабжение: хвс, канализация. Отопление магистральное. Лифт: грузопассажирский на 1500 кг. Безопасность: территория огорожена и находится под круглосуточной охраной. Окружение: Элитная жилая застройка, Серебрянный Бор Удобный подъезд с проспекта Маршала Жукова, Звенигородского шоссе, Нижних Мневников и Карамышевской набережной. До сити на автомобиле 10 мин. В 7 минутах ходьбы - станция метро Улица Народного Ополчения. Идеальное использование: фабрика кухни, кухня доставки, рабочий офис, инженерное, конструкторское или архитектурное бюро, коворкинг, дизайн-студия, типография, фитнес центр, ателье, швейная мастерская, шоу-рум, студия йоги, фото-студия, студия звукозаписи, игровой клуб, центр развития ребенка, медицинский центр, клиника, стоматология, кальянная. Прекрасный вариант для тех, кому интересны оригинальные проекты не похожие на обыденные пространства. Сдается без мебели.
улица Саляма Адиля, дом 9к3, Москва, Россия
Цена аренды:
520 000 руб./мес
Общая площадь:450 м²






























