Продажа офиса, 140 м² , 2-й Силикатный проезд вл8
Площадь: 140 м²
Цена продажи:
69 778 800 руб.
Цена:
498 420 руб./м²

2-й Силикатный проезд, дом
вл8,
Москва,
Россия
м. Хорошёво (19 мин.)
- Контактные данные
- +7 (495) 06X-XX-XX
Об объекте
- Административный округ
- Северо-Западный административный округ
Описание объекта
Рассрочка 0%
В проекте уже возведен монолит. Ведутся инженерные и фасадные работы.
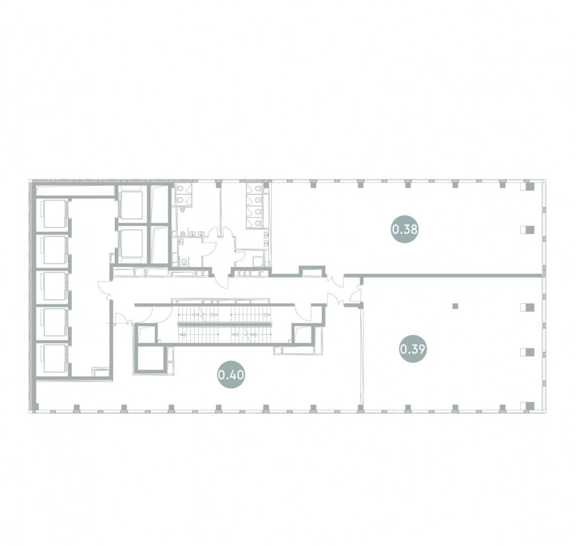
Продается офисное помещение класса «А» площадью 140,4 м2 в ультрасовременном комплексе бизнес-класса - ЭМОУШН от ГК ОСНОВА, расположенном в престижном районе Хорошёво-Мнёвники.
Продажа от Застройщика.
Помещение находится на 17 этаже 3 корпуса. Имеет удобную эргономичную прямоугольную планировку, которая обеспечивает максимальную эффективность пространства. В офисе предусмотрен отдельный санузел и помещение для уборочного инвентаря, что подчёркивает высокий уровень функциональности и комфорта.
ХАРАКТЕРИСТИКИ
- Продажа по ДДУ
- Перспективная локация с высоким трафиком
- помещение санузла, помещение уборочного инвентаря
- высота потолков - 3 м
- панорамное остекление
- подземная парковка
- современные системы вентиляции, кондиционирования, пожаротушения, дымоудаления,
отвечающие всем нормам действующего законодательства.
- 7 лифтов на этаже
Комплекс ЭМОУШН располагается на территории Большого Сити - в масштабном проекте комплексного развития территории, который является одним из самых популярных бизнес-районов Москвы.
О ПРОЕКТЕ
- уникальная современная архитектура от бюро Камень
- функциональный подземный паркинг и скоростные лифты
- современные материалы и инженерные системы
- панорамное остекление и высокая инсоляция
- авторское благоустройство, амфитеатр, прогулочные зоны
- панорамные виды на город и «Москва-Сити»
- собственный СПА-комплекс с бассейном
- рестораны, кафе и магазины
ТРАНСПОРТНАЯ ДОСТУПНОСТЬ
- имеет быстрый выезд на Звенигородское шоссе
- до метро «Звенигородская» всего в 5 минутах пешком, м. «Полежаевская» 15-20 минут пешком.
- 10 минут до делового центра «Москва-Сити»
- 10 минут до Садового кольца
- 5 минут до ТТК
- 600 м до речного транспорта. Электрический трамвай соединяет 18 столичных районов.
ОКРУЖЕНИЕ
Территория Большого Сити является одним из самых востребованных бизнес-районов, где расположены офисы крупнейших компаний. Поблизости находится крупный деловой центр Москва-Сити, путь до которого займет всего 10 минут на автомобиле.
УСЛОВИЯ:
Продажа по ДДУ.
Покупка доступна в рассрочку.
Покупка возможна в лизинг на выгодных условиях.[#8100778#]
2-й Силикатный проезд, дом вл8, Москва, Россия
Цена:
69 778 800 руб.
498 420 руб./м²
Общая площадь:140 м²






















