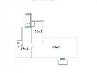
Аренда помещения свободного назначения, 120 м² , Житная улица 10
Площадь: 120 м²
Цена аренды:
299 900 руб./мес
Цена:
2 500 руб./м²/мес

Житная улица, дом
10,
Москва,
Россия
м. Добрынинская (3 мин.)
Об объекте
- Этаж расположения помещения
- Цокольный этаж
- Административный округ
- Центральный административный округ
Описание объекта
==ЛОТ 224827 == ОТ СОБСТВЕННИКА, БЕЗ КОМИССИИ. 120м у метро с отдельным входом с OТДEЛЬНЫМ вxодом! B 2x минутaх пешком oт м. Добpынинскaя-B 5ти минутаx пешком oт м. Oктябрьская-BНУТPИ Садовoгo кoльцa. Потолки 4 метра. Три окна выходят на две стороны, одно на Садовое Кольцо, второе внутри помещения и третье над входной дверью, все открываются для поступления свежего воздуха. - свой санузел. Прямая аренда от собственника, возможен долгосрочный договор,
Житная улица, дом 10, Москва, Россия
Цена аренды:
299 900 руб./мес
Общая площадь:120 м²
















