Аренда помещения свободного назначения, 795 м² , Большой Харитоньевский переулок 25
Площадь: 795 м²
Цена аренды:
3 180 000 руб./мес
Цена:
4 000 руб./м²/мес

Большой Харитоньевский переулок, дом
25,
Москва,
Россия
м. Красные ворота (3 мин.)
Об объекте
- Этаж расположения помещения
- 1 этаж
- Административный округ
- Центральный административный округ
Описание объекта
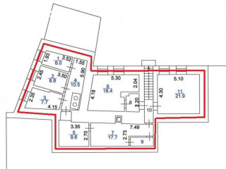
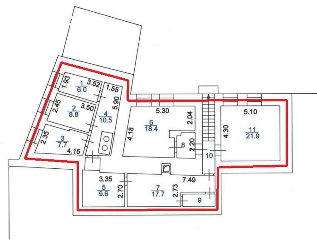
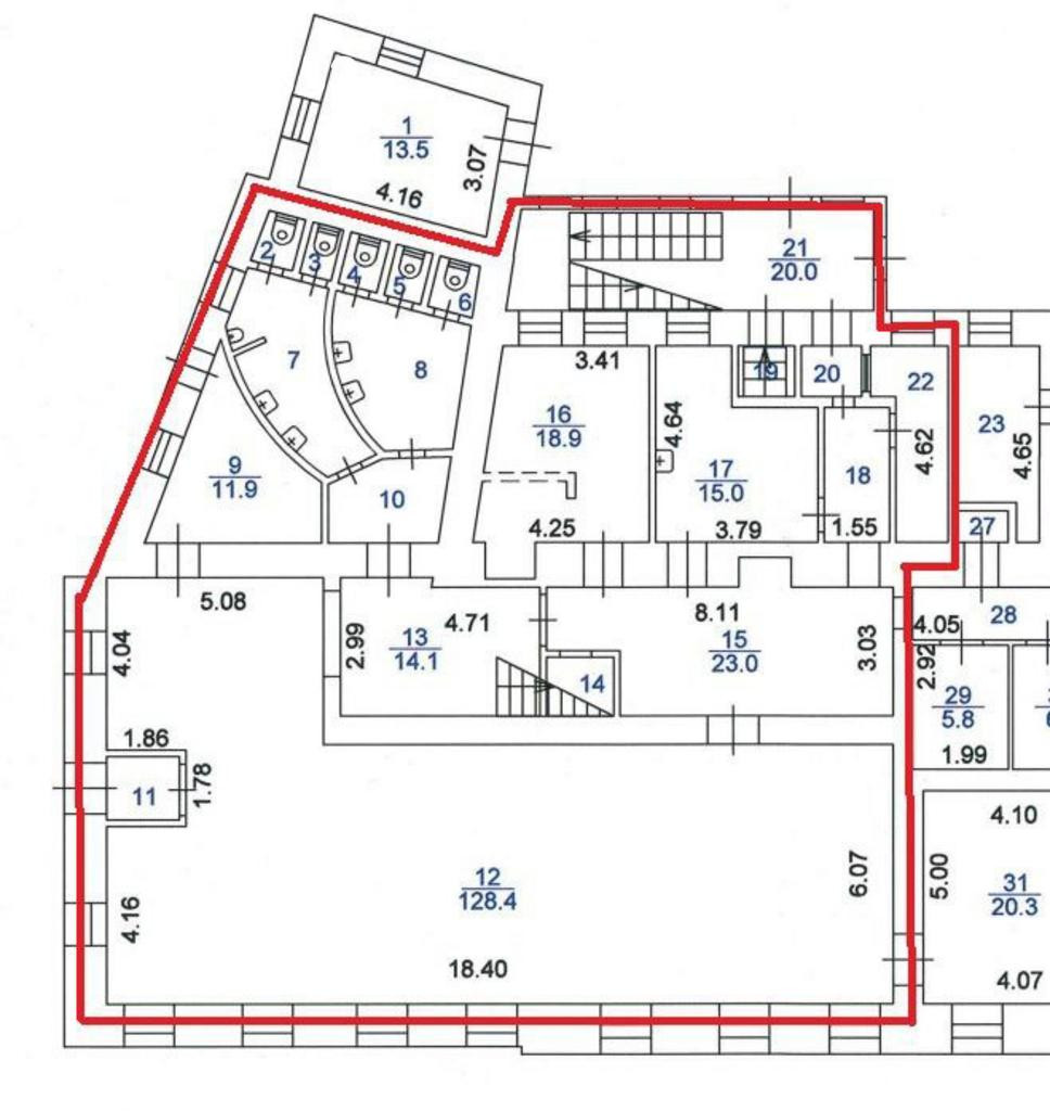
==ЛОТ 224853 == ОТ СОБСТВЕННИКА, БЕЗ КОМИССИИ. Сдаем помещение на первой линии садового кольца. Помещение угловое, место под вывеску на фасаде. Помещение состоит из трех уровней: 1 этаж 297 м2, 2 этаж 384 м2, и -1 этаж 113,7 м2. см. планировку. Отлично подойдет под представительство фирмы, банк, или другое направление вашего бизнеса. Готовы обсуждать условия, прямой представитель собственника.
Большой Харитоньевский переулок, дом 25, Москва, Россия
Цена аренды:
3 180 000 руб./мес
Общая площадь:795 м²
























