Продажа помещения свободного назначения, 141 м² , Озёрная улица вл42
Площадь: 141 м²
Цена продажи:
82 790 400 руб.
Цена:
587 166 руб./м²

Озёрная улица, дом
вл42,
Москва,
Россия
м. Озёрная (7 мин.)
- Контактные данные
- +7 (495) 06X-XX-XX
Об объекте
- Административный округ
- Новомосковский административный округ
Описание объекта
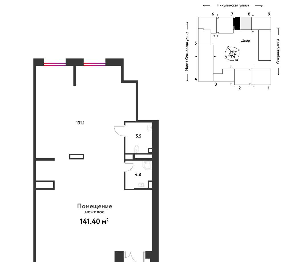
Продается помещение площадью 141.4 м2 в 7 мин. пешком от м. Озёрная. Помещение располагается в 30-этажном здании, находится на 1 этаже здания.
Возможное назначение - коммерция, высота потолков 3 м, внутри типовой ремонт, год постройки 2025, застройщик здания - ГК Страна Девелопмент.
Вход - общий с улицы.
Парковка автомобилей - наземная, парковка на 423 машиномест, выделены места под гостевые автомобили в количестве шт, парковка предоставляется бесплатно.[#8118701#]
Озёрная улица, дом вл42, Москва, Россия
Цена:
82 790 400 руб.
587 166 руб./м²
Общая площадь:141 м²






