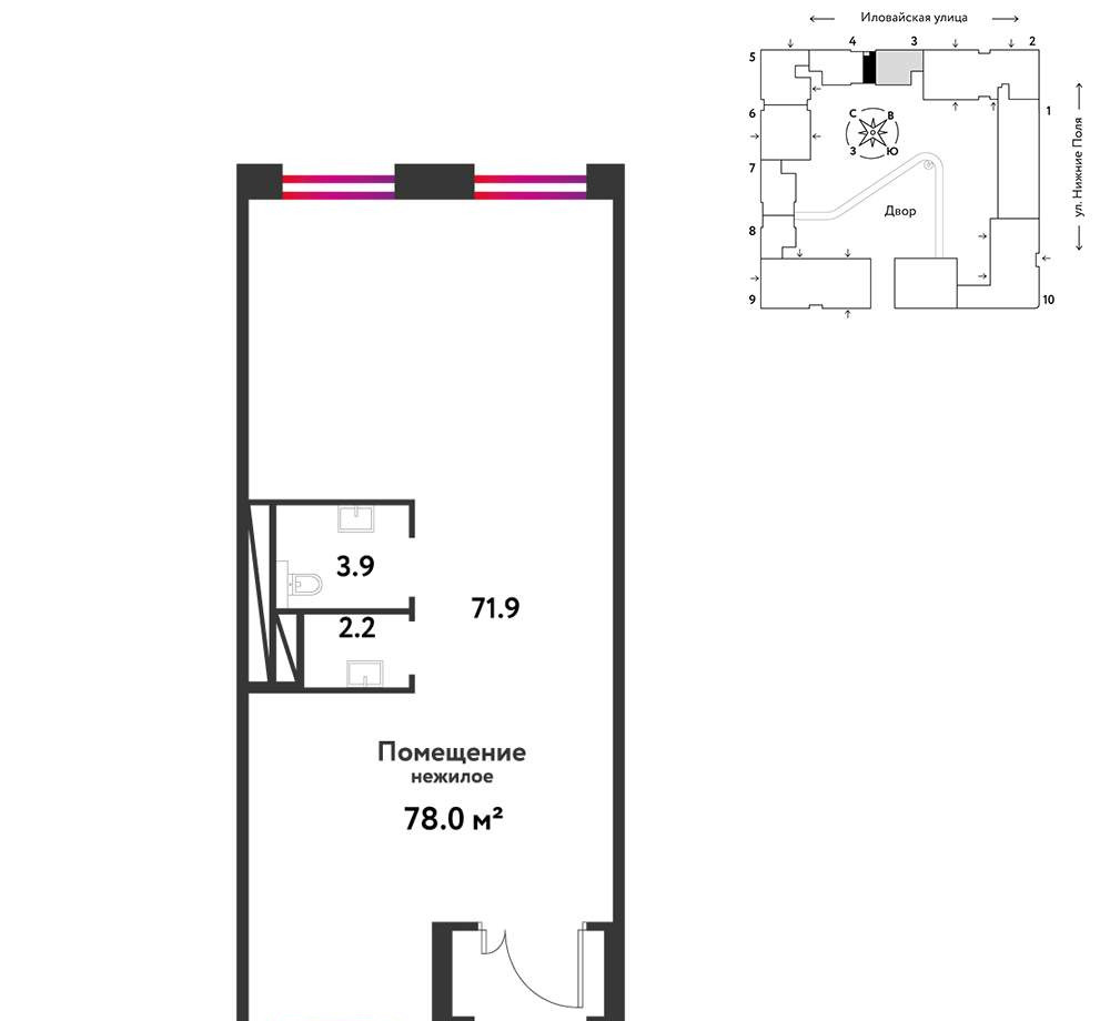
Продажа помещения свободного назначения, 78 м² , Иловайская улица 3с5
Площадь: 78 м²
Цена продажи:
39 990 000 руб.
Цена:
512 693 руб./м²

Иловайская улица, дом
3с5,
Москва,
Россия
- Контактные данные
- +7 (495) 06X-XX-XX
Об объекте
- Административный округ
- Юго-Восточный административный округ
Описание объекта
Стрит-ритейл в новом ЖК «Страна. Заречная» в Москве от федерального застройщика «Страна Девелопмент». Проект расположен в пешей доступности от станции МЦД «Перерва». Район Марьино активно развивается: строятся новые жилые кварталы, социальные объекты и развивается комфортная городская среда с собственной инфраструктурой. Уже сейчас в пешей доступности - более 50 000 человек.
Преимущества
площади от 25 м
современные помещения на первой линии
витринное остекление и отдельные входы
прямой безбарьерный доступ с улицы
подойдут для кафе, магазинов, медцентров, салонов, ПВЗ и других форматов
сдача помещений - в 2028 году
Отделка
Помещения передаются в формате Shell&Core - их легко адаптировать под любой бизнес и учесть все детали: от планировки до дизайна. Часть работ застройщик уже выполнил: установлено витражное остекление, подведены коммуникации, подключена телеметрия - система автоматического учёта воды, электричества и отопления.
Способы покупки
100% оплата
ипотека
рассрочка[#8118716#]
Иловайская улица, дом 3с5, Москва, Россия
Цена:
39 990 000 руб.
512 693 руб./м²
Общая площадь:78 м²







