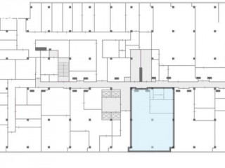
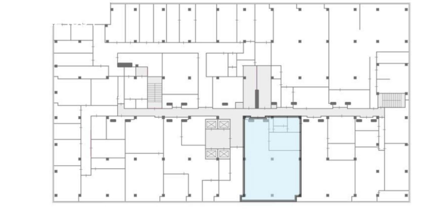
Продажа офиса, 214 м² , Проектируемый проезд № 4062 6с2
Площадь: 214 м²
Цена продажи:
59 819 540 руб.
Цена:
279 531 руб./м²

Проектируемый проезд № 4062, дом
6с2,
Москва,
Россия
м. Технопарк
Об объекте
- Этаж расположения помещения
- 4 этаж
- Административный округ
- Южный административный округ
Описание объекта
==ЛОТ 224864 == ОТ СОБСТВЕННИКА, БЕЗ КОМИССИИ. Предлагается к приобретению офисное помещение площадью 214,1 м?, расположенное на четвертом этаже здания. Помещение оборудовано дизайнерским ремонтом и имеет смешанную планировку, включающую переговорную комнату, кабинет и зону ресепшн. Остекление выполнено в виде панорамных окон, а также установлена центральная система вентиляции и кондиционирования воздуха.
Проектируемый проезд № 4062, дом 6с2, Москва, Россия
Цена:
59 819 540 руб.
279 531 руб./м²
Общая площадь:214 м²








