Продажа офиса, 904 м² , Проектируемый проезд № 4062 6с2
Площадь: 904 м²
Цена продажи:
260 175 230 руб.
Цена:
287 805 руб./м²

Проектируемый проезд № 4062, дом
6с2,
Москва,
Россия
м. Технопарк
Об объекте
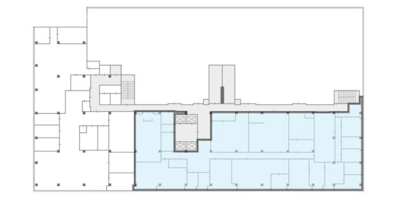
- Этаж расположения помещения
- 3 этаж
- Административный округ
- Южный административный округ
Описание объекта
==ЛОТ 224869 == ОТ СОБСТВЕННИКА, БЕЗ КОМИССИИ. Предлагается к приобретению офисное помещение площадью 903,7 м?, расположенное на третьем этаже здания. Помещение оборудовано дизайнерским ремонтом и имеет смешанную планировку, включающую переговорную комнату, кабинет и зону ресепшн. Остекление выполнено в виде панорамных окон, а также установлена центральная система вентиляции и кондиционирования воздуха.
Проектируемый проезд № 4062, дом 6с2, Москва, Россия
Цена:
260 175 230 руб.
287 805 руб./м²
Общая площадь:904 м²










