Аренда помещения свободного назначения, 379 м² , улица Академика Пилюгина 4
Площадь: 379 м²
Цена аренды:
1 540 000 руб./мес
Цена:
4 064 руб./м²/мес

улица Академика Пилюгина, дом
4,
Москва,
Россия
м. Новые Черемушки (8 мин.)
Об объекте
- Этаж расположения помещения
- 1 этаж
- Административный округ
- Юго-Западный административный округ
Описание объекта
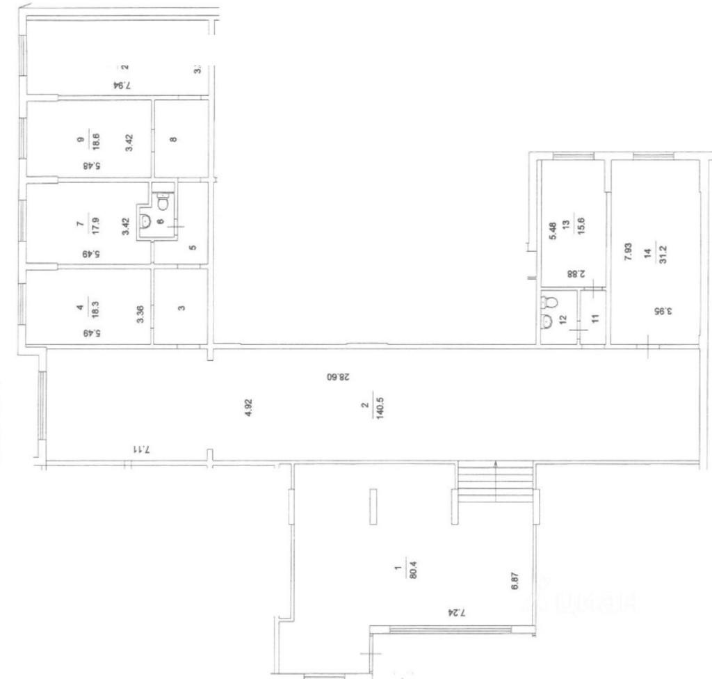
==ЛОТ 224930 == ОТ СОБСТВЕННИКА, БЕЗ КОМИССИИ. Предлагается в аренду помещение .Расстояние от станции метро "Новые Черёмушки" составляет приблизительно 10 минут пешком. Помещение расположено в Ломоносовском районе Юго-Западного административного округа города Москвы (ЮЗАО), в непосредственной близости от нового здания Государственного института театрального искусства (ГИТИС).Общая площадь помещения составляет 378,7 квадратных метров. Оно расположено на первой линии домов, что характеризуется высокой интенсивностью автомобильного и пешеходного трафика, а также наличием развитой торгово-деловой инфраструктуры.На территории предусмотрена площадка для парковки. Помещение находится на первом этаже жилого дома и имеет три отдельных входа с улицы.
улица Академика Пилюгина, дом 4, Москва, Россия
Цена аренды:
1 540 000 руб./мес
Общая площадь:379 м²










