Аренда офиса, 311 м² , проспект Мира 105с1
Площадь: 311 м²
Цена аренды:
908 834 руб./мес
Цена:
2 923 руб./м²/мес

проспект Мира, дом
105с1,
Москва,
Россия
м. ВДНХ (7 мин.)
Об объекте
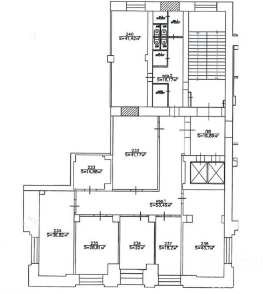
- Этаж расположения помещения
- 2 этаж
- Административный округ
- Северо-Восточный административный округ
Описание объекта
==ЛОТ 224997 == ОТ СОБСТВЕННИКА, БЕЗ КОМИССИИ. Предлагается в аренду офисное помещение, расположенное на втором этаже здания. Помещение оснащено круглосуточной системой охраны, имеется внутренний паркинг для сотрудников и посетителей. В офисе установлены современные системы кондиционирования, а большие окна обеспечивают естественное освещение и панорамный вид. Удобный выезд на проспект Мира обеспечивает легкий доступ к основным транспортным артериям города.
проспект Мира, дом 105с1, Москва, Россия
Цена аренды:
908 834 руб./мес
Общая площадь:311 м²











