Аренда помещения свободного назначения, 388 м² , Комсомольский проспект 15с2
Площадь: 388 м²
Цена аренды:
1 210 000 руб./мес
Цена:
3 119 руб./м²/мес

Комсомольский проспект, дом
15с2,
Москва,
Россия
м. Фрунзенская (5 мин.)
Об объекте
- Этаж расположения помещения
- 1 этаж
- Административный округ
- Центральный административный округ
Описание объекта
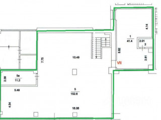
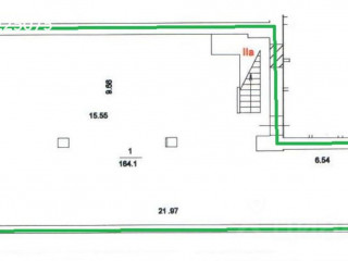
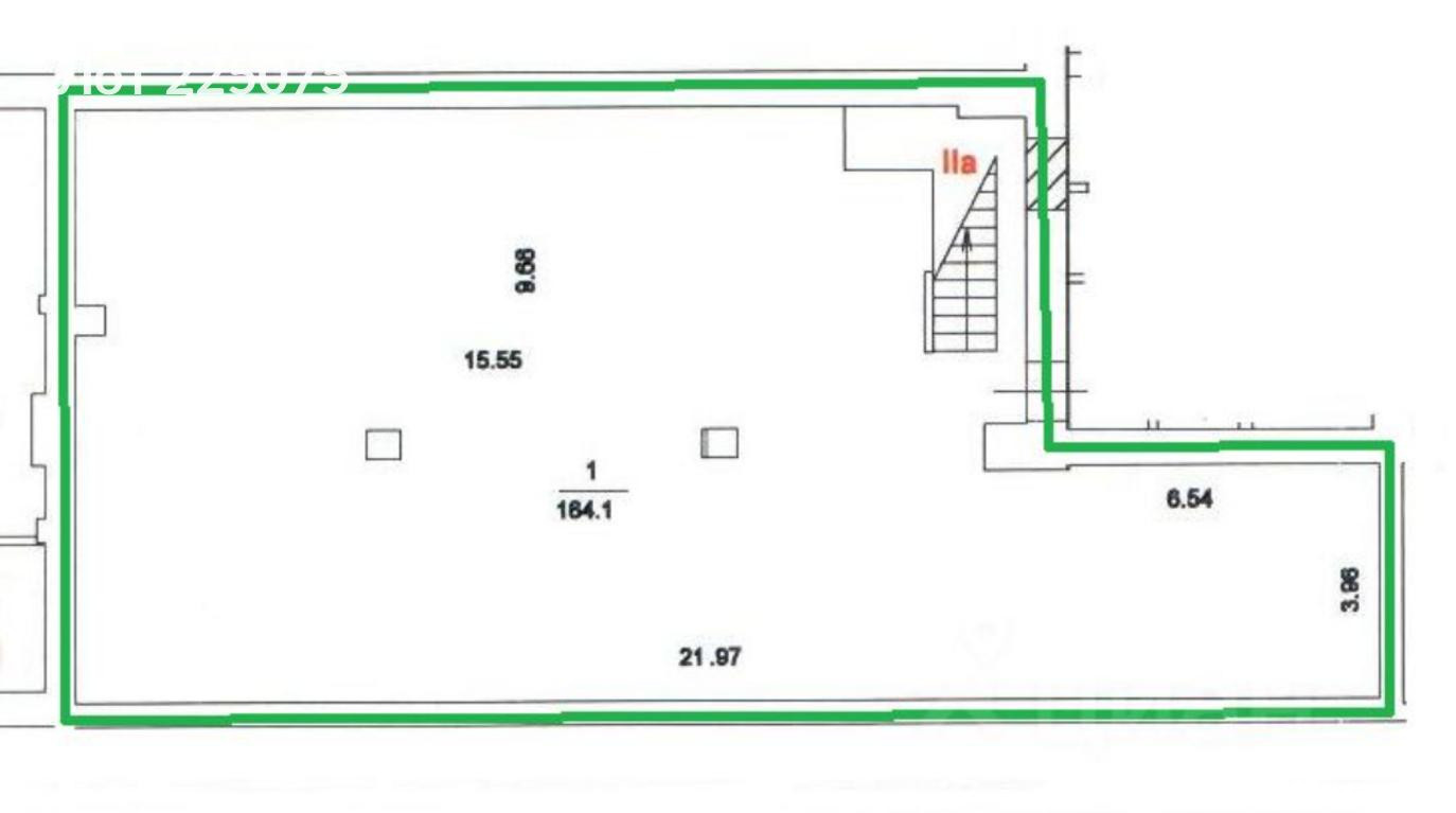
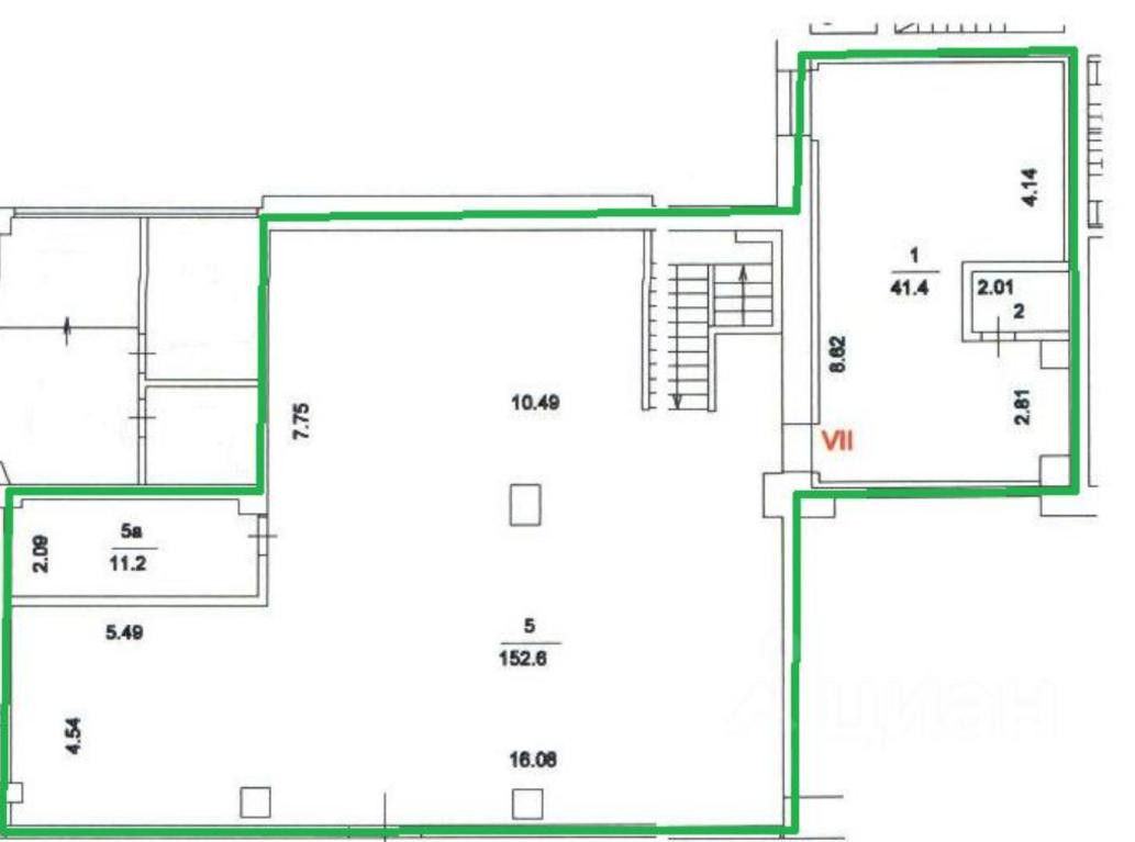
==ЛОТ 225075 == ОТ СОБСТВЕННИКА, БЕЗ КОМИССИИ. Предлагается в аренду помещение общей площадью 388,5 м?, включая 207,7 м? на первом этаже, 164,1 м? в подвальном этаже и 16,7 м? в цокольном этаже, расположенное по адресу: город Москва, ПСН Комсомольский проспект, дом 15, строение 2.Основные характеристики помещения: Состояние ремонта: удовлетворительное.Расположение: первая линия. Доступ: отдельная входная группа. Окна: витринные окна от потолка до пола, расположенные вдоль всего Комсомольского проспекта. Размещение вывески: возможность размещения рекламной вывески на фасаде здания, непосредственно над входом в помещение. Режим работы: круглосуточно.
Комсомольский проспект, дом 15с2, Москва, Россия
Цена аренды:
1 210 000 руб./мес
Общая площадь:388 м²










