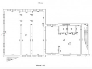
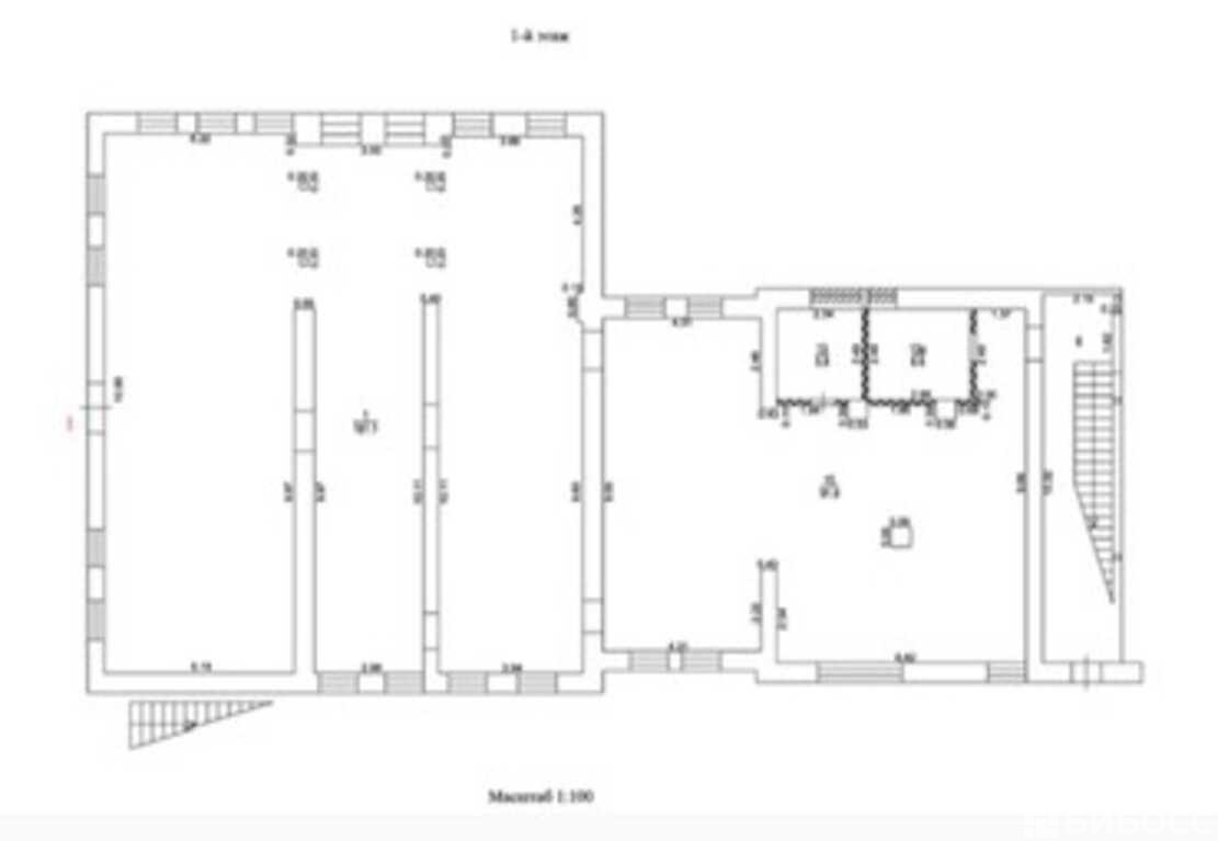
Аренда помещения свободного назначения, 666 м² , улица Брянский Пост 7с4
Площадь: 666 м²
Цена аренды:
1 500 000 руб./мес
Цена:
2 253 руб./м²/мес

улица Брянский Пост, дом
7с4,
Москва,
Россия
м. Беговая (2 мин.)
Об объекте
- Этаж расположения помещения
- 1 этаж
- Административный округ
- Центральный административный округ
Описание объекта
==ЛОТ 225245 == ОТ СОБСТВЕННИКА, БЕЗ КОМИССИИ. Сдаем помещение, в отдельно стоящем здании. Два этажа, открытая планировка. У здания есть своя территория, возможна установка веранды. Помещение можно сделать как Лофт, кирпич не обработан. Готовы рассмотреть клуб, медицину, гостинницу или другое направление вашего бизнеса. Так есть парковка у здания для ваших клиентов. Места под вывеску имеются.
улица Брянский Пост, дом 7с4, Москва, Россия
Цена аренды:
1 500 000 руб./мес
Общая площадь:666 м²














