Аренда офиса, 215 м² , Научный проезд 19
Площадь: 215 м²
Цена аренды:
360 000 руб./мес
Цена:
1 675 руб./м²/мес

Научный проезд, дом
19,
Москва,
Россия
м. Калужская (3 мин.)
- Контактные данные
- +7 (939) 51X-XX-XX
Об объекте
- Административный округ
- Юго-Западный административный округ
Описание объекта
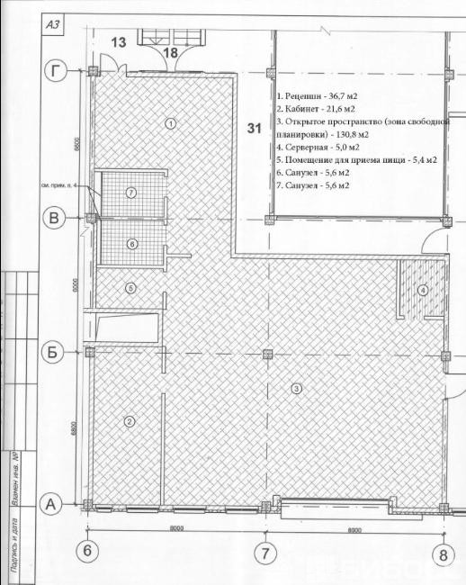
Сдается в аренду офисное помещение, расположенное на 3-м этаже БЦ "9 акров" по адресу: Научный проезд д. 19. Площадь - 215,3 кв. м. Планировка open space (свободная планировка) + кабинет руководителя, серверная комната, кухня, женские и мужские туалетные комнаты.
Качественная столовая + 4 точки питания, нотариус в здании, охраняемая территория.
Центральная вентиляция и кондиционирование.
Эксплуатационные и коммунальные расходы не включены в стоимость и оплачиваются арендатором отдельно.[#8201610#]
Научный проезд, дом 19, Москва, Россия
Цена аренды:
360 000 руб./мес
Общая площадь:215 м²
















