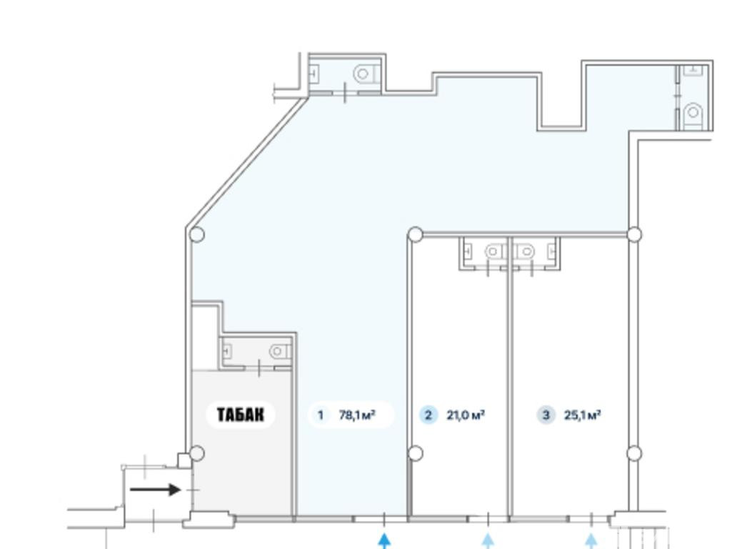
Аренда помещения свободного назначения, 78 м² , Уральская улица 5А
Площадь: 78 м²
Цена аренды:
450 000 руб./мес
Цена:
5 770 руб./м²/мес

Уральская улица, дом
5А,
Москва,
Россия
м. Щелковская (5 мин.)
Об объекте
- Этаж расположения помещения
- 1 этаж
- Административный округ
- Восточный административный округ
Описание объекта
==ЛОТ 225365 == ОТ СОБСТВЕННИКА, БЕЗ КОМИССИИ. Предлагается в аренду коммерческое помещение, расположенные по адресу: улица Уральская, Восточный административный округ, город Москва.Локация обеспечивает высокую степень транспортной и пешеходной доступности, что подтверждается близостью к станции метро «Щелковская» — расстояние составляет три минуты пешком.
Уральская улица, дом 5А, Москва, Россия
Цена аренды:
450 000 руб./мес
Общая площадь:78 м²









