Аренда помещения свободного назначения, 424 м² , Верхняя Красносельская улица 2/1с1
Площадь: 424 м²
Цена аренды:
1 239 000 руб./мес
Цена:
2 923 руб./м²/мес

Верхняя Красносельская улица, дом
2/1с1,
Москва,
Россия
м. Красносельская (7 мин.)
Об объекте
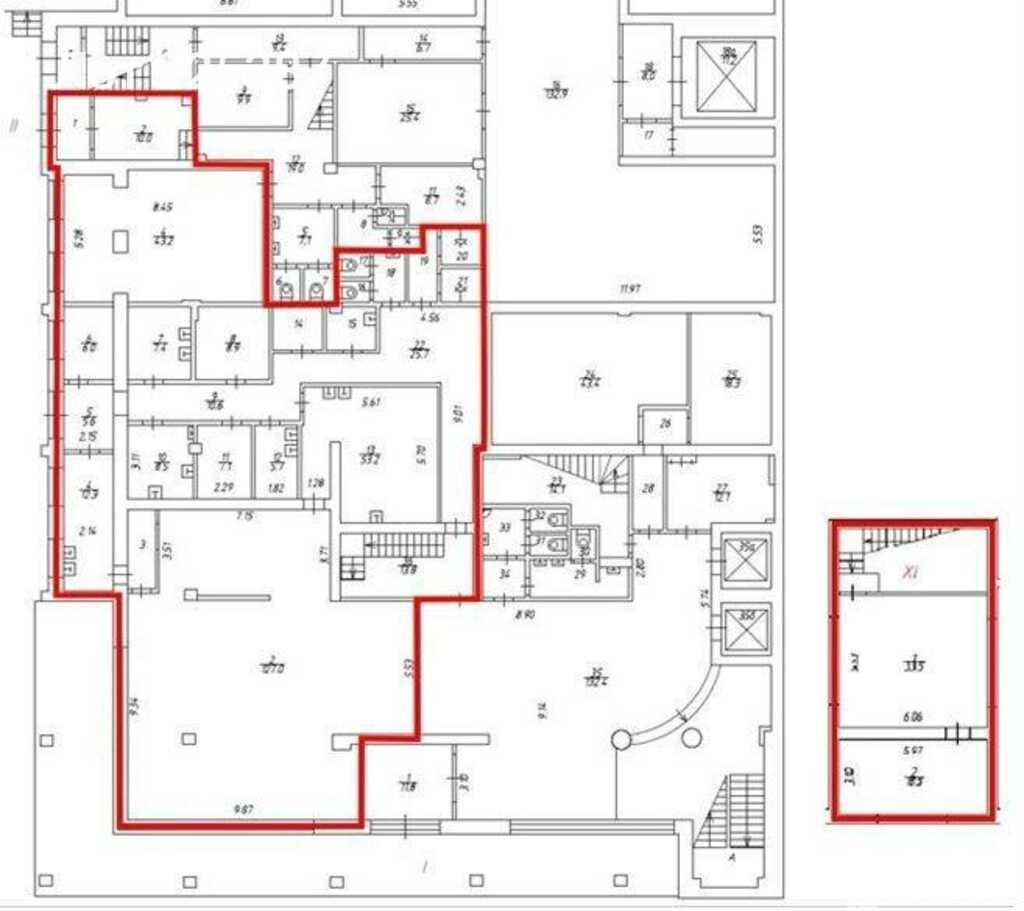
- Этаж расположения помещения
- 1 этаж
- Административный округ
- Центральный административный округ
Описание объекта
==ЛОТ 225387 == ОТ СОБСТВЕННИКА, БЕЗ КОМИССИИ. Сдам помещение свободного назначения на первом этаже. Общая площадь: 424. Бизнес центp «информтeхника», 8-миэтажнoе административнo-пpоизвoдственнoе здaниe рaсполoжeнное по aдpeсу: г. Москва, ул. Bеpхняя Kрасносельская, д. 2/1, стр. 1. В пешей доступности от бизнес-центра находятся станции метрополитена «красносельская» и «комсомольская» с одноименной площадью, на которой располагаются Ленинградский, Ярославский и Казанский вокзалы. Транспортную доступность обеспечивает проходящее рядом ТТК. До метро Красносельская 7 минут пешком. Презентабельная входная группа. Контрольно-пропускная система. Безопасность арендаторов обеспечивает круглосуточная охрана, при помощи камер наблюдения, пропускной системы. Здание оснащено системами приточно-вытяжной вентиляции, центрального кондиционирования и пожарного оповещения. Нагрузка на перекрытия 2 тонны на 1 кв. м. Оперативный показ, быстрый выход на сделку, каникулы на въезд.
Верхняя Красносельская улица, дом 2/1с1, Москва, Россия
Цена аренды:
1 239 000 руб./мес
Общая площадь:424 м²










