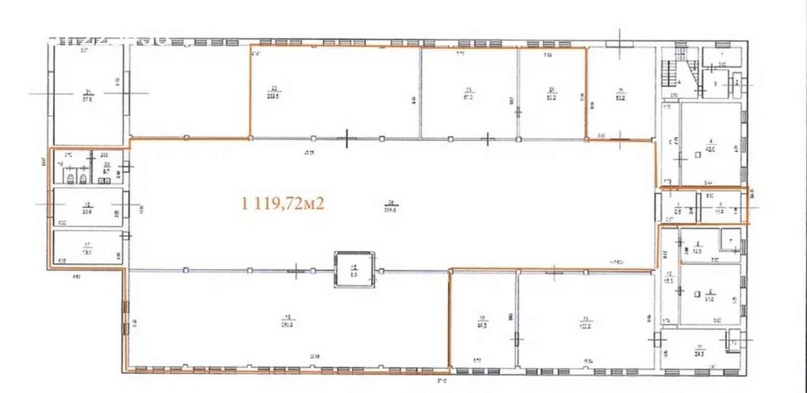
Аренда помещения свободного назначения, 1120 м² , 1-я Северная линия 1с9
Площадь: 1120 м²
Цена аренды:
1 486 988 руб./мес
Цена:
1 328 руб./м²/мес

1-я Северная линия, дом
1с9,
Москва,
Россия
Об объекте
- Этаж расположения помещения
- 1 этаж
- Административный округ
- Северо-Восточный административный округ
Описание объекта
==ЛОТ 225436 == ОТ СОБСТВЕННИКА, БЕЗ КОМИССИИ. Сдается отапливаемое помещение на первом этаже, идеально подходящее под склад или лёгкое производство.
Характеристики:
• Ворота «с нуля» — 3,2 ? 3,4 м
• Загрузочный пандус высотой 1,2 м
• Кран-балка грузоподъёмностью 5 тонн
• Наличие санузла
• Антресоль (не входит в указанную площадь)
Дополнительно:
• Охраняемая территория
• Круглосуточный доступ
• Возможность аренды части здания
• Есть площади для открытого хранения
• Помещения для персонала в том же здании
Условия:
• Цена включает НДС 22%
• Электричество и отопление оплачиваются по счётчикам
14:25
1-я Северная линия, дом 1с9, Москва, Россия
Цена аренды:
1 486 988 руб./мес
Общая площадь:1 120 м²










