Продажа помещения свободного назначения, 991 м² , улица Каховка 20А
Площадь: 991 м²
Цена продажи:
215 000 000 руб.
Цена:
216 953 руб./м²

улица Каховка, дом
20А,
Москва,
Россия
- Контактные данные
- +7 (930) 06X-XX-XX
Об объекте
- Административный округ
- Юго-Западный административный округ
Описание объекта
Предлагается к продаже коммерческий объект единым лотом - готовый арендный бизнес в Москве по ул Каховка, в бизнес-центре рядом с метро Зюзино (5 минут пешком).
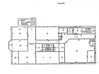
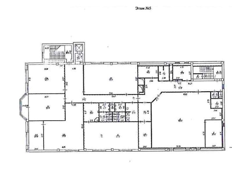
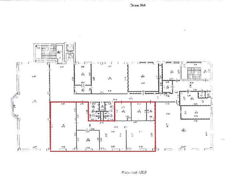
Общая площадь - ~1 000 м2 (точно: 991 м2=17,1+220,6+301,7+451,6).
Помещения расположены на 4 и 5 этажах, полностью готовы к эксплуатации и не требуют дополнительных вложений. Помещения уже сдаются, и приносят ежемесячно прибыль. Продаем в связи с другой большой сделкой.
Объект в собственности.
Без залогов, без обременений, без судебных ограничений.
Чистая юридическая история.
Готов к быстрой сделке.
Основные характеристики:
Площадь: ~1 000 м2 (991 м2)
Формат: помещения свободного назначения
Состояние: с ремонтом, мебелью и инженерией
Арендаторы: действующие, долгосрочные договоры
Индексация: предусмотрена
Парковка: наземная, рядом со зданием
Продажа: исключительно единым лотом
Инженерия и оснащение:
- вентиляция и кондиционирование
- интернет и телекоммуникации
- офисная мебель
- пожарная сигнализация
- охрана
Локация и транспортная доступность:
Объект расположен в деловом районе с высокой плотностью застройки и устойчивым спросом на аренду.
Метро в пешей и удобной транспортной доступности:
- Зюзино
- Севастопольская
- Каховская
- Новые Черемушки
- Воронцовская
- Калужская
Удобные подъездные пути, развитая городская инфраструктура, сформированная деловая среда.
Финансовые условия:
Стоимость объекта - 215 000 000
Средняя цена - ~217 000 за м2
Для реального покупателя готовы обсуждать:
- варианты оплаты,
- структуру сделки,
- индивидуальные условия.
Объект подходит как для долгосрочного инвестирования с арендным доходом, так и для последующей перепаковки или продажи частями.
Просмотр - по предварительной договоренности.
Готовы предоставить дополнительную информацию по арендаторам и доходности.
Почему это сильнее банковского депозита?
Сегодня депозит может давать 14–16% годовых.
Но депозит - это фиксированная доходность без роста капитала.
В данном случае инвестор получает:
стабильный ежемесячный денежный поток
фактическую доходность ~8% годовых уже сегодня
потенциал роста доходности до ~14% при выходе на рыночные ставки
возможность ежегодной индексации аренды
рост стоимости самого объекта со временем
Коммерческая недвижимость в Москве - это не просто процент, а актив, который:
- защищает капитал от инфляции
- может быть перепродан дороже
- генерирует кэш-фло независимо от банковской политики
Депозит не растет в цене.
Недвижимость растет.
Поисковые фразы:
коммерческая недвижимость москва
готовый арендный бизнес москва
арендный бизнес с арендаторами
продажа коммерческой недвижимости
доходная недвижимость москва
инвестиционная недвижимость
коммерческий объект москва
помещение свободного назначения
псн москва
офисные помещения москва
готовый бизнес с арендаторами[#8233480#]
улица Каховка, дом 20А, Москва, Россия
Цена:
215 000 000 руб.
216 953 руб./м²
Общая площадь:991 м²































