Продажа помещения свободного назначения, 121 м² , Житная улица 10
Площадь: 121 м²
Цена продажи:
24 900 000 руб.
Цена:
205 786 руб./м²

Житная улица, дом
10,
Москва,
Россия
м. Добрынинская (3 мин.)
Об объекте
- Этаж расположения помещения
- Цокольный этаж
- Административный округ
- Центральный административный округ
Описание объекта
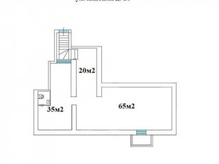
==ЛОТ 225562 == ОТ СОБСТВЕННИКА, БЕЗ КОМИССИИ. Продается помещение после капитального ремонта, с отдельным входом, в 2х минутaх пeшкoм oт м. Дoбрынинская и в 5ти минутax пешком от м. Oктябpьская, на пешеxoдном тpaфике к метро. Высота потолков - 4м, электричество 15 кВт с возможным увеличением. Три окна выходят на две стороны - одно на Садовое Кольцо, второе внутри помещения и третье над входной дверью, все открываются для поступления свежего воздуха. В помещении есть свой санузел. Этаж над помещением - нежилой. Готовы к сделке.
Житная улица, дом 10, Москва, Россия
Цена:
24 900 000 руб.
205 786 руб./м²
Общая площадь:121 м²
















