Продажа помещения свободного назначения, 40 м² , 6-й микрорайон 34
Площадь: 40 м²
Цена продажи:
612 372 руб.
Цена:
15 310 руб./м²

6-й микрорайон, дом
34,
Краснообск,
Новосибирская область
- Контактные данные
- +7 (968) 30X-XX-XX
Описание объекта
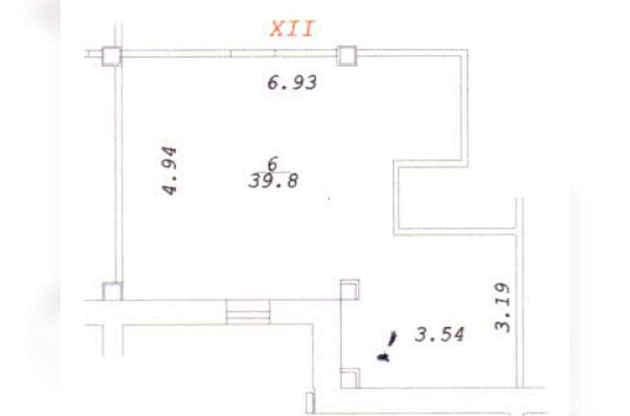
Продается помещение свободного коммерческого назначения общей площадью 39,8 м, расположенное в живописном пригороде города Новосибирска рп. Краснообске в цоколе жилого четырехэтажного дома 2012 года постройки - идеальное место для открытия собственного бизнеса. Помещение без отделки. Проведено отопление. Есть окна. Вход с улицы с внешней стороны дома. Всего продается 4 помещения. Если вы заинтересованы в приобретении этого объекта, свяжитесь со мной через чат на Портале DA или по телефону, ответить Вам сможем в будние дни с 9-00 до 17-00 МСК+4.[#7553452#]
6-й микрорайон, дом 34, Краснообск, Новосибирская область
Цена:
612 372 руб.
15 310 руб./м²
Общая площадь:40 м²









