Продажа офиса, 207 м² , улица Плахотного 27/1
Площадь: 207 м²
Цена продажи:
24 500 000 руб.
Цена:
118 358 руб./м²

улица Плахотного, дом
27/1,
Новосибирск,
Россия
- Контактные данные
- +7 (913) 91X-XX-XX
Описание объекта
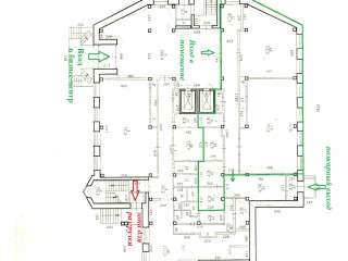
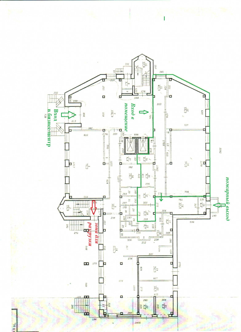
Отдельный офисный блок на 1 этаже бизнес-центра "Альянс". Планировочная система представляюет собой три просторных кабинета + кабинет непосредственно рядом с входом, сквозной коридор, два санузла, пожарный выход. Возможна перепланировка по согласованию (шаг между колонн 6 м.). Помещение сдается на сигнализацию, находится непосредственно напротив входа, рядом с постом охраны. На этаже есть рабочий вход для разгрузки/погрузки. Соседи: медцентр, нотариальная палата, бассейн. Рядом администрация Ленинского района, пл. Станиславского, напротив сквер Славы. Есть возможность размещать рекламу в холле БЦ (стойки, островки, баннеры и т.д.)
Написать представителю
Ирина Марфина
Ваша информация в безопасности.
Она будет отправлена только контактному лицу данного объявления.
улица Плахотного, дом 27/1, Новосибирск, Россия
Цена:
24 500 000 руб.
118 358 руб./м²
Общая площадь:207 м²

















