Аренда офиса, 5000 м² , улица Игоря Москаленко 137с2
Площадь: 5000 м²
Цена аренды:
2 500 000 руб./мес
Цена:
500 руб./м²/мес

улица Игоря Москаленко, дом
137с2,
Омск,
Россия
- Контактные данные
- +7 (923) 76X-XX-XX
Об объекте
- Район
- Кировский
Описание объекта
? АДМИНИСТРАТИВНОЕ ЗДАНИЕ 5000 м² В ОМСКЕ | ОТ 2 500 000 РУБ./МЕС.
? ЛОКАЦИЯ И ХАРАКТЕРИСТИКИ:
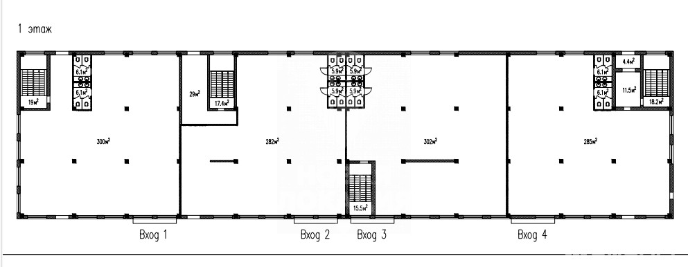
• Улица 60 лет Победы, 6
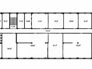
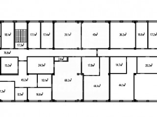
• Площадь: 5000 кв.м
• Класс B
• Высота потолков: 3 м
• Отдельный вход
?️ ТЕХНИЧЕСКОЕ ОСНАЩЕНИЕ:
• Открытая планировка
• Электричество: 300 кВт
• Центральные коммуникации
• Кондиционер
• Отопление
• Газ
?️ ПРЕИМУЩЕСТВА:
• Современное состояние
• Просторные помещения
• Гибкая планировка
• Отдельная парковка
• Собственность подтверждена
? УСЛОВИЯ АРЕНДЫ:
• Залог: 1 месяц
• УСН
• Коммунальные платежи включены
• Длительный срок аренды
? ИДЕАЛЬНО ПОДХОДИТ ДЛЯ:
• Офисных центров
• Учебных заведений
• Бизнес-центров
• Административных учреждений
? ЗАПИШИТЕСЬ НА ПРОСМОТР ПРЯМО СЕЙЧАС!
? Ответим на все вопросы в директ
#арендазданияомск #административноездание #коммерческаянедвижимость #омскбизнес #арендаомск #недвижимостьомск #бизнесвозможности #офисвцентре #торговыйпомещение #помещениедляаренды #омскцентр #бизнесвозможности #арендаомск2025 #помещениедлябизнеса #коммерцияомск #недвижимостьроссии #бизнесврф #торговыйцентр #офисдляаренды #помещенияомск
Написать представителю
Владимир Новиков
Ваша информация в безопасности.
Она будет отправлена только контактному лицу данного объявления.
улица Игоря Москаленко, дом 137с2, Омск, Россия
Цена аренды:
2 500 000 руб./мес
Общая площадь:5 000 м²




















































