Продажа производственного помещения, 1465 м² , улица Егорова 3
Площадь: 1465 м²
                                   Цена продажи:
                                        49 900 000 руб.
                                Цена:                                 
                                    34 062 руб./м²

 улица Егорова, дом
                        3,
                        Пенза,
                    Россия
улица Егорова, дом
                        3,
                        Пенза,
                    Россия
- Контактные данные
- +7 (906) 39X-XX-XX
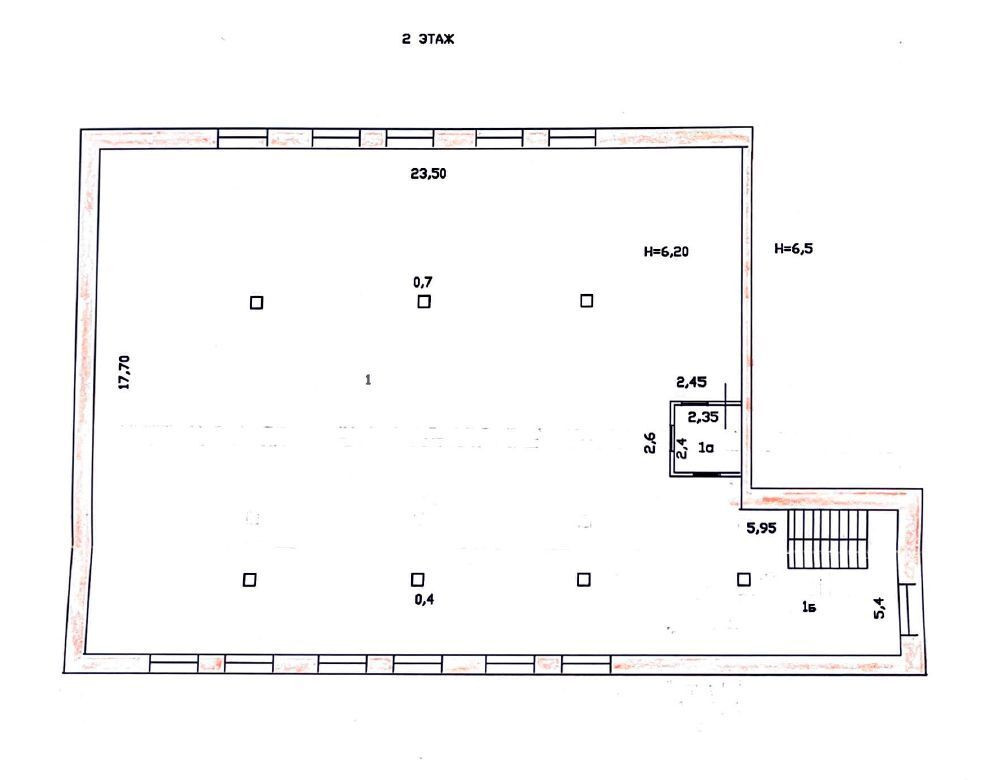
Об объекте
- Этаж расположения помещения
- 1 этаж
- Этажность дома
- 3 этажей
Описание объекта
Здание 3-х этажное, внутри выполнена отделка в соответствии с осуществляемым видом деятельности (выпуск электротехнических изделий и сопутствующие работы). Здание и земельный участок находится в собственности.
Из коммуникаций здания: 
1. Газопровод среднего давления
2. Сети на 380 и 220 вольт, мощность по запросу.
3. Городская канализация.
4. Городской водопровод.
Производство находится в районе с развитой инфраструктурой для промышленной деятельности и доступностью транспортной логистики.
На данный момент это действующий и приносящий доход бизнес с собственным пулом клиентов, возможен вариант продажи бизнеса.
Предложение интересно тем, что предлагается цикл производства от прямых контрактов с поставщиками, до прямых контрактов с покупателями, в числе которых крупные клиенты.
Оптимизированный бизнес-процесс по всему производственному циклу, необходимый набор оборудования, помещений, низкая себестоимость продукции и, как следствие, хорошая маржинальная доходность. Слаженный коллектив и долгое время работы на
рынке, знание всех нюансов работы.
Приобретение данного бизнеса позволит получить готовый и прибыльный проект с собственным клиентским базисом и отличной репутацией на рынке. Кроме того, наличие собственного здания и земельного участка позволяет расширять бизнес и увеличивать производственные мощности без необходимости аренды дополнительных помещений.
Важным преимуществом данного предложения является возможность приобретения не только бизнеса, но и собственности на здание и земельный участок, что является дополнительным активом и инвестицией в будущее. 
Также стоит отметить, что производство электротехнических изделий и сопутствующих работ является востребованным направлением, что гарантирует стабильный доход и возможность расширения бизнеса в будущем. 
В целом, приобретение данного бизнеса является выгодным и перспективным вложением капитала с готовым проектом, клиентской базой и собственностью на здание и земельный участок.
Настоящее объявление носит исключительно информационный характер и ни при каких обстоятельствах не может быть признано офертой. Номер в базе: J3914
Написать представителю

Виктор Матасов
                                        Ваша информация в безопасности. 
                                        Она будет отправлена только контактному лицу данного объявления.
улица Егорова, дом 3, Пенза, Россия
                            Цена:
                            49 900 000 руб.
34 062 руб./м²
                            Общая площадь:1 465 м² 






