Аренда помещения свободного назначения, 1300 м² , 1-й микрорайон 4
Площадь: 1300 м²
Цена аренды:
1 300 000 руб./мес
Цена:
1 000 руб./м²/мес

1-й микрорайон, дом
4,
Лучегорск,
Приморский край
- Контактные данные
- +7 (934) 66X-XX-XX
Описание объекта
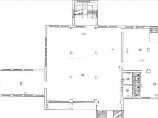
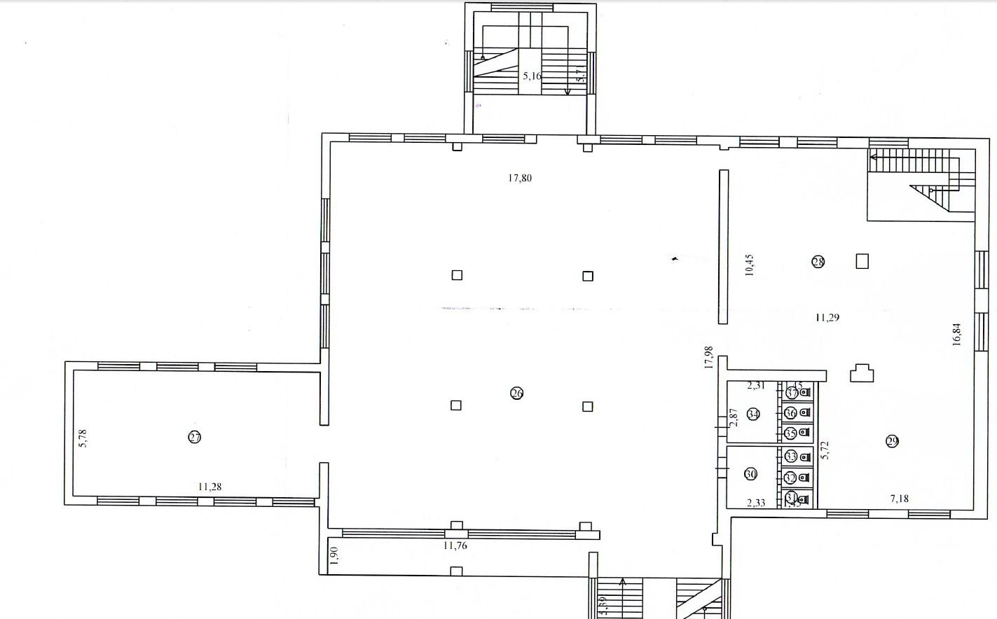
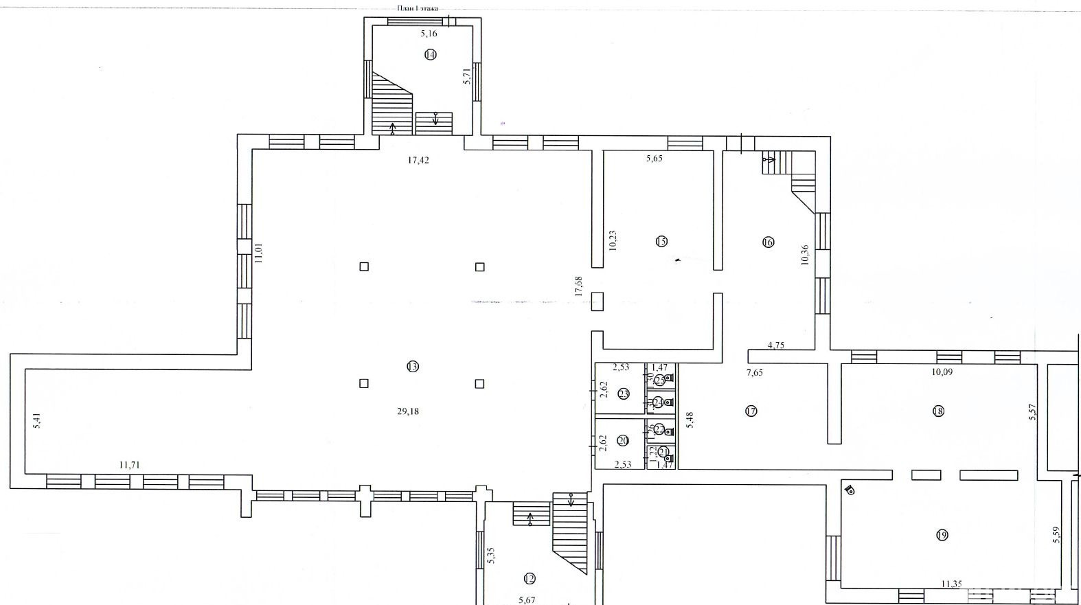
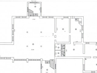
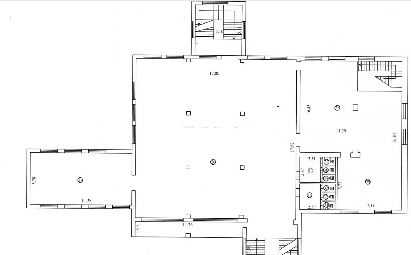
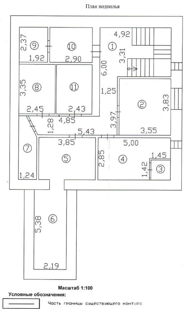
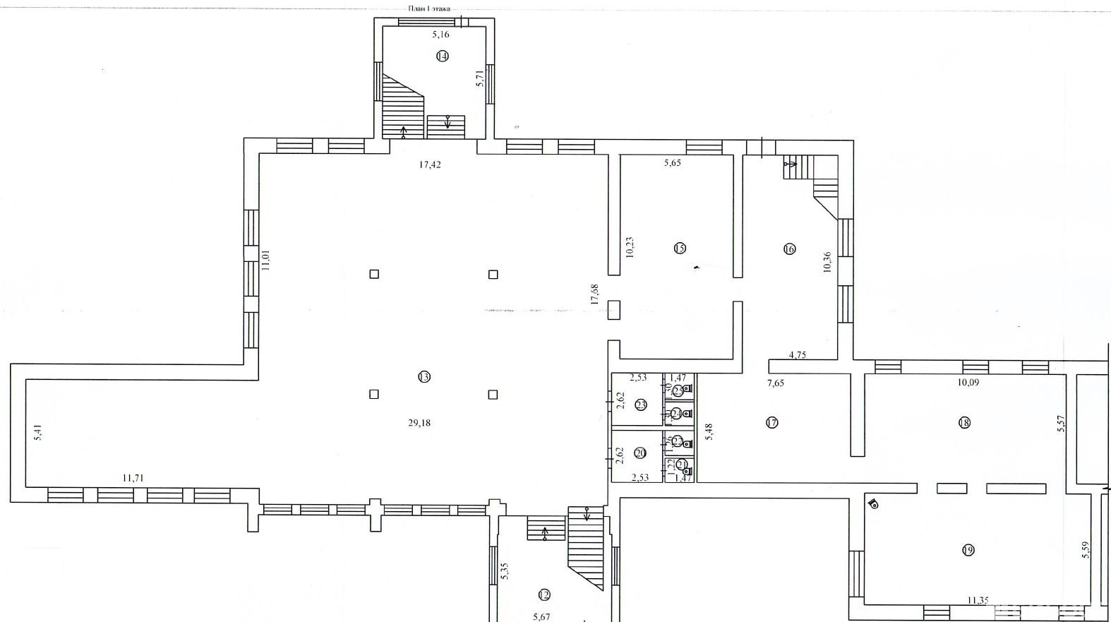
Сдам в аренду здание под ресторан, торговый центр, площадью 1300 м2. Этажей в здании - 2, высота потолков: 3 м. Здание предоставляется в прямую аренду, срок аренды - свыше года. Минимальный срок аренды 11 мес.
Отдельный вход в здание с улицы, есть водоснабжение.[#8204148#]
1-й микрорайон, дом 4, Лучегорск, Приморский край
Цена аренды:
1 300 000 руб./мес
Общая площадь:1 300 м²













