Аренда магазина, 457 м² , улица Чехова 230
Площадь: 457 м²
Цена аренды:
320 000 руб./мес
Цена:
701 руб./м²/мес

улица Чехова, дом
230,
Таганрог,
Ростовская область
- Контактные данные
- +7 (936) 54X-XX-XX
Описание объекта
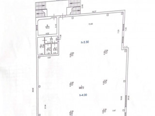
Сдам в аренду помещение в торговом комплексе площадью 456.6 м2, в прямую аренду, на срок от одного года, с возможностью арендных каникул. Минимальный срок аренды 11 мес. Помещение располагается в 2-этажном отдельно стоящем здании.
Помещение располагается на 1 этаже здания.
Возможное назначение помещения - коммерция, высота потолков 4 м, внутри типовой ремонт, на полу плитка, тип окон - витринные, окна выходят на улицу. Общая площадь здания 956 м2, здание на первой линии, участок находится в собственности.
Внутри нет кондиционирования, автономное отопление, есть водоснабжение.
Доступ в здание свободный, парковка предоставляется бесплатно. Хороший автомобильный, пешеходный трафик. 10 лет помещение арендовал Магнит[#7842230#]
улица Чехова, дом 230, Таганрог, Ростовская область
Цена аренды:
320 000 руб./мес
Общая площадь:457 м²











