Продажа помещения свободного назначения, 933 м² , улица Чехова 230
Площадь: 933 м²
Цена продажи:
120 000 000 руб.
Цена:
128 618 руб./м²

улица Чехова, дом
230,
Таганрог,
Ростовская область
- Контактные данные
- +7 (988) 19X-XX-XX
Описание объекта
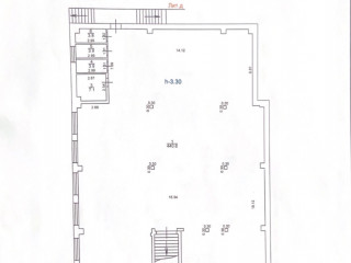
Продается отдельно стоящее здание площадью 933 кв. м, этажей в здании - 2 (цокольный этаж 464,5 м кв. - высота потолков 3,3 м; 1 этаж 468,6 м кв. - высота потолков: 4 м), на полу плитка, тип окон - витринные, выходят окна во двор и на улицу, год постройки 2012 г., участок находится в собственности, здание полностью функционирует, удобное расположение на первой линии
Отдельный вход в здание с улицы.
В здании: местное кондиционирование, вентиляция - приточная, автономное отопление, пожарная сигнализация, водоснабжение.,
Парковка автомобилей - наземная, парковка предоставляется бесплатно. Отлично подойдет для тц, мед клиники, банка[#7979743#]
улица Чехова, дом 230, Таганрог, Ростовская область
Цена:
120 000 000 руб.
128 618 руб./м²
Общая площадь:933 м²









