Аренда офиса, 80 м² , улица Черняховского 26-28
Площадь: 80 м²
Цена аренды:
90 000 руб./мес
Цена:
1 125 руб./м²/мес

улица Черняховского, дом
26-28,
Санкт-Петербург,
Россия
м. Лиговский проспект (5 мин.)
- Контактные данные
- +7 (981) 33X-XX-XX
Об объекте
- Район
- Центральный
Описание объекта
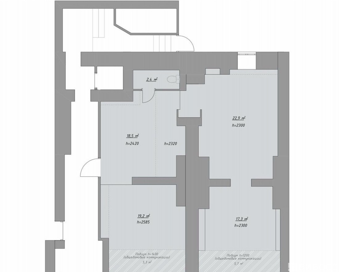
Помещение свободного назначения площадью 80 кв.м, дизайнерский ремонт, в цокольном этаже, вход через парадную, въезд на бесплатную парковку во дворе. 5 мин. пешком от м.Лиговский проспект (проходимый двор - люди срезают дорогу от метро), предоставляется юридический адрес. Высота потолков: 2,58м, 2,4м, 2,3 м. В прямую аренду без агента, с предоплатой за 1 месяц, арендные каникулы (2 недели). Залог 50% - можно разбить на 2 части. Сделана вентиляция, одна мокрая точка. Стоимость аренды+отдельно ку 5000-8000р в зависимости от сезона. Подойдет под офис, фотостудию, коворкинг и т.д. Рассмотрю разные варианты с учетом расположения в жилом доме. Под ПВЗ не сдается![#7771740#]
улица Черняховского, дом 26-28, Санкт-Петербург, Россия
Цена аренды:
90 000 руб./мес
Общая площадь:80 м²















