Аренда офиса, 65 м² , Львовская улица 27
Площадь: 65 м²
Цена аренды:
142 120 руб./мес
Цена:
2 187 руб./м²/мес

Львовская улица, дом
27,
Санкт-Петербург,
Россия
м. Новочеркасская (15 мин.)
- Контактные данные
- +7 (983) 06X-XX-XX
Об объекте
- Район
- Красногвардейский
Описание объекта
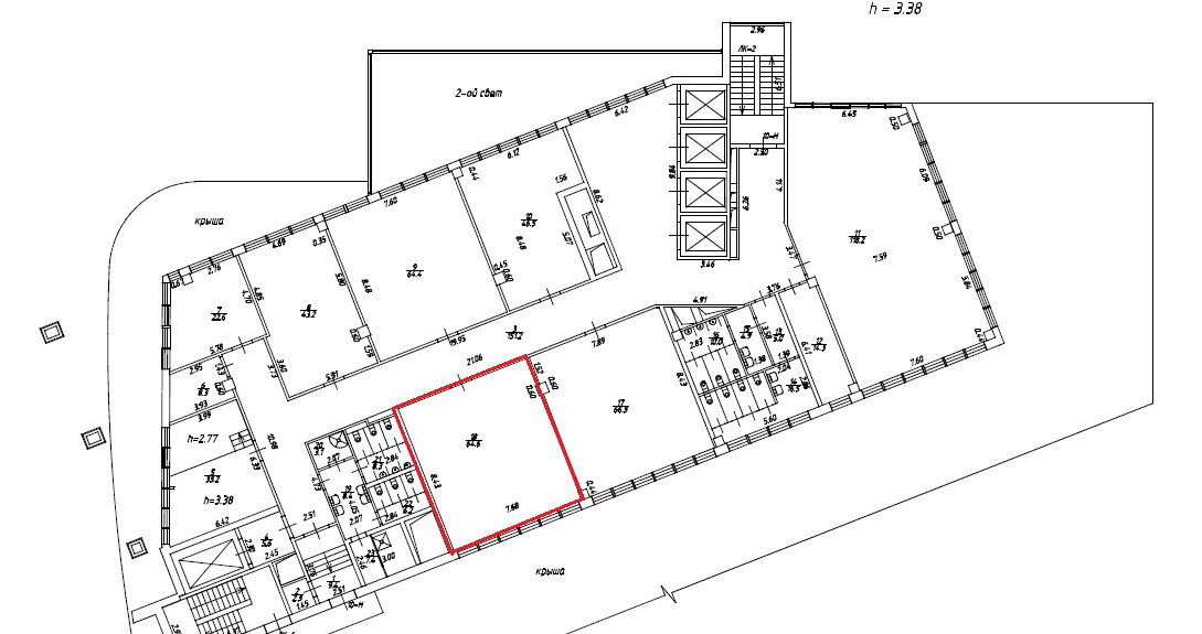
Помещение под офис площадью 64.6 кв.м, на 2 этаже 14-этажного бизнес-центра класса A в 15 мин. транспортом от м.Новочеркасская в Красногвардейском районе Санкт-Петербурга. Высота потолков: 3.37 м. Офис предоставляется в прямую аренду, срок аренды - любой, с предоплатой за 1 месяц. Минимальный срок аренды 11 мес. Офис со стандартной отделкой, внутри открытая планировка, на полу ковролин, тип окон - витринные, окна выходят во двор.
Офис расположен в центре "Office L27 (Офис Л27)", общая площадь здания 15808 м2, здание построено в 2016 году, здание полностью функционирует, доступ в здание осуществляется по пропускам, доступ в здание круглосуточный.
Вход в офис - общий с улицы. В здании есть лифт, охрана, в офисе центральное кондиционирование, вентиляция офиса - приточная, центральное отопление, спринклерная система пожаротушения.[#7852934#]
Львовская улица, дом 27, Санкт-Петербург, Россия
Цена аренды:
142 120 руб./мес
Общая площадь:65 м²
























