Аренда склада, 1649 м² , Железнодорожная улица 11к2
Площадь: 1649 м²
Цена аренды:
1 401 480 руб./мес
Цена:
850 руб./м²/мес

Железнодорожная улица, дом
11к2,
Санкт-Петербург,
Россия
м. Озерки (10 мин.)
- Контактные данные
- +7 (812) 21X-XX-XX
Об объекте
- Район
- Выборгский
Описание объекта
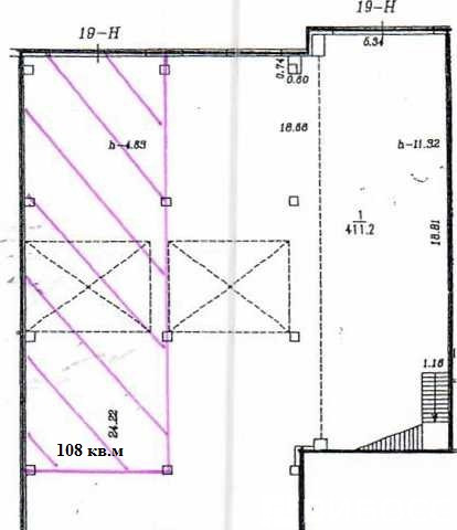
Производственно-складское теплое помещение, общей площадью 1648,8 кв.м, 1-2-этаж (108 кв.м - 1 этаж ; 1540,8 кв.м. - 2 этаж , высота потолков 5.5 метров.) Полы выровненные, бетонная стяжка с упрочняющим верхним слоем, антипылевым покрытием. В наличии система промышленной канализации, в т.ч. трапы. Система ХВС, ГВС - водонагреватели, электрическая мощность - 700 квт, возможность увеличения до 1,2 МВт при условии выполнения электромонтажных работ (выкупать мощность не нужно, на здание выделено 2,8 МВт). Территория газифицирована, возможность подключения к газопроводу. Шаг колонн в помещении – 6х6 м. кв. Установлен подъемник – 1 шт, + есть запасной (Тех. характеристика одного подъемника: электродвигатель 15 квт, грузоподъемность – 3 тонны, высота подъема – 5 м., длина платформы – 5 м, ширина платформы – 3,8 м). Ворота подъемно-секционные роллерного типа под газель - 1 шт (h 3,3 м., ширина 3 м). Имеются встроенные подсобные помещения (раздевалки, душевые, столовая, бытовые помещения и т.д) . Долгосрочный договор приветствуется. Подходит под пищевку. КУ оплачиваются отдельно. Большая прилегающая территория.[#7990563#]
Железнодорожная улица, дом 11к2, Санкт-Петербург, Россия
Цена аренды:
1 401 480 руб./мес
Общая площадь:1 649 м²



















