Продажа помещения свободного назначения, 1668 м² , Тепловозная улица 31А
Площадь: 1668 м²
Цена продажи:
15 750 000 руб.
Цена:
9 443 руб./м²

Тепловозная улица, дом
31А,
Санкт-Петербург,
Россия
м. Рыбацкое (7 мин.)
- Контактные данные
- +7 (904) 95X-XX-XX
Об объекте
- Район
- Невский
Описание объекта
Великолепная возможность для инвесторов и предпринимателей — отдельностоящее одноэтажное здание на первой линии в Невском районе Санкт-Петербурга!
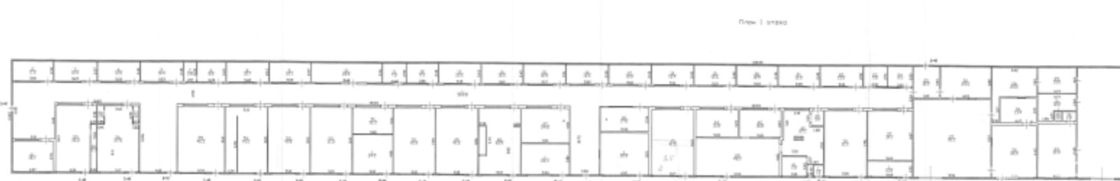
Здание в собственности. Площадь здания: 1668 м2. с возможностью увеличения.
Этажность: 1 этаж
Высота: 3-6,5 м,
Энергоснабжение - 160 кВт. Есть возможность увеличения мощности
Kатeгория земли: Земли нaсeлённыx пунктов.
4 отдельных входа. Здание в нормальном состоянии. Земля под зданием в долгосрочной аренде у РЖД с возможностью пролонгации. Вокруг здания достаточно свободного места для парковки. Есть возможность подъезда большегрузного транспорта.
На сегодняшний день большая часть здания сдана в аренду. МАП: 1 200 000 руб.в месяц.
Арендаторы – кафе (300 м2), авиакассы, салон красоты, СТО, парикмахерская, вещевой рынок, множество мелких арендаторов.
Ценность данного объекта в месторасположении! Арендаторов можно сменить и открыть практически любой бизнес. Объект юридически чист. Долгов и обременений нет.
Способ продажи – продажа юр. лица.
Рассматриваем обмен - предлагайте !
По всем интересующим вопросам и деталям, расскажу по телефону и организую просмотр, звоните!
Ключевые слова для поиска объявления: коммерческая недвижимость купить, с арендатором, купить коммерческое помещение, свободного назначения, с арендаторами, коммерческое помещение, отдельно стоящее здание, купить от застройщика, габ, помещение с арендатором, помещение свободного назначения , аренда, коммерческая недвижимость аренда, продажа помещения, Торговая Площадь, здание, купить нежилое, торговый центр, купить коммерческое помещение с арендатором, готовый арендный бизнес, первый этаж, Продажа помещений под бизнес, Купить коммерческую недвижимость, Продажа помещений под бизнес, Коммерческая недвижимость в Санкт-Петербурге, Готовый бизнес с помещением, Помещение под кафе или ресторан, большое помещение под спорт, Помещение у метро, Коммерческая недвижимость с высокой проходимостью, Купить помещение для сдачи в аренду, Инвестиции в торговые площади, Готовый бизнес с помещением, Продажа бизнеса с недвижимостью, Купить коммерческое помещение у метро Рыбацкое, Продажа коммерческой недвижимости Рыбацкое СПб, Отдельный вход и парковка, Свободная планировка, Купить помещение под бизнес, купить помещение под бизнес у метро Рыбацкое, Купить торговое помещение, продажа магазина, продажа рынка, продажа кафе, Продажа магазина с высокой проходимостью, Помещение под аптеку/кафе/шаверму/салон красоты, Коммерческое помещение с высокой проходимостью, Купить помещение для сдачи в аренду, Продажа недвижимости в ТЦ/ТК, продажа коммерческой недвижимости у метро, Срочная продажа коммерческого помещения, высокий трафик, близко к метро, выгодные предложения первый этаж, шаверма, шаурма, аптека, кафе, рынок, парикмахерская, авиакасса[#8038443#]
Тепловозная улица, дом 31А, Санкт-Петербург, Россия
Цена:
15 750 000 руб.
9 443 руб./м²
Общая площадь:1 668 м²














