Аренда магазина, 395 м² , Ленинский проспект 134
Марина
контактное лицо
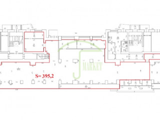
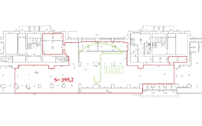
Площадь: 395 м²
Цена аренды:
800 000 руб./мес
Цена:
2 026 руб./м²/мес

Ленинский проспект, дом
134,
Санкт-Петербург,
Россия
м. Ленинский проспект (5 мин.)
- Контактные данные
- +7 (812) 24X-XX-XX
Об объекте
- Район
- Кировский
Описание объекта
Аренда части торгового зала в ТК Универмаг Нарвский . Витрины. Общий вход. Рядом ст. метро "Ленинский проспект". Парковка - перед помещением. Возможное использование - шоу-рум, магазин Рядом : магазины одежды и обуви, аксессуаров, косметики, ювелирные магазины, кафе. Всегда высокий пешеходный и автомобильный трафик. Дополнительно оплачиваются КУ, НДС 5% Объект №1316-20848.
Написать представителю
Марина
Ваша информация в безопасности.
Она будет отправлена только контактному лицу данного объявления.
Ленинский проспект, дом 134, Санкт-Петербург, Россия
Цена аренды:
800 000 руб./мес
Общая площадь:395 м²












