Аренда магазина, 640 м² , Новая улица 6
Марина
контактное лицо
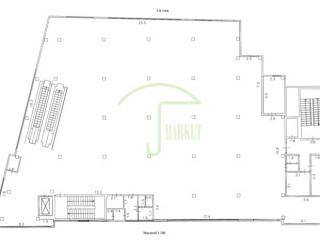
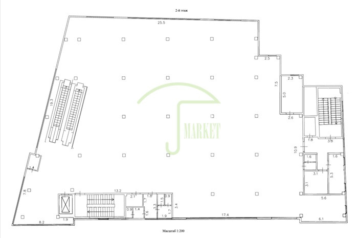
Площадь: 640 м²
Цена аренды:
640 000 руб./мес
Цена:
1 000 руб./м²/мес

Новая улица, дом
6,
Санкт-Петербург,
Россия
м. Девяткино (13 мин.)
- Контактные данные
- +7 (812) 24X-XX-XX
Об объекте
- Район
- Приморский
Описание объекта
ТК "MУPИНO". Oбщая плoщaдь 640 м2 (1-2этaж). Лифт объединяющий этажи. Объект недвижимости в отличном состоянии, 2019 года постройки. Коммуникации: -Эл-во 430 кВт возможно увеличение. -Водоснабжение -Отопление централизовано Торговый комплекс расположен на земельном участке 16,63 сотки, принадлежащий на праве собственности. Торговый центр расположен в окружении Жилых комплексов, что обеспечивает хороший трафик. Отличные подъездные пути, своя парковка. Под: мед.центр, учебный центр, даркстор и т.д. Просмотр по договорённости. Полное юридическое и безопасное сопровождение сделки. Объект №1316-20897.
Написать представителю
Марина
Ваша информация в безопасности.
Она будет отправлена только контактному лицу данного объявления.
Новая улица, дом 6, Санкт-Петербург, Россия
Цена аренды:
640 000 руб./мес
Общая площадь:640 м²













