Продажа магазина, 146 м² , 4-я линия Васильевского острова 51
Марина
контактное лицо
Площадь: 146 м²
Цена продажи:
14 900 000 руб.
Цена:
102 055 руб./м²

4-я линия Васильевского острова, дом
51,
Санкт-Петербург,
Россия
м. Василеостровская
- Контактные данные
- +7 (812) 24X-XX-XX
Об объекте
- Район
- Василеостровский
Описание объекта
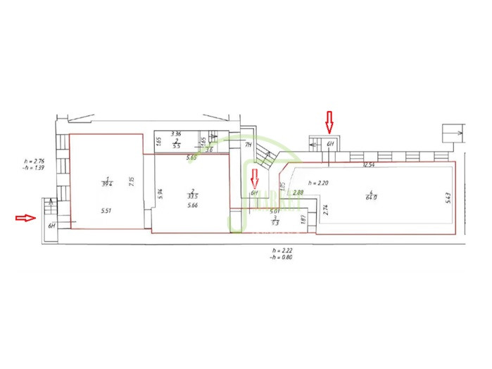
Торговое помещение у ст. метро Василеостровская. Расположено на цокольном этаже сетевого доходного дома. Вся сумма в договоре.
Характеристики помещения:
- высота потолков 2,5 м - 2,85 м
- мощность 30 кВт
- этаж - цоколь, заглубление 1,39 м
- состояние - без отделки
- по фасаду 3 окна и 4 выходят во двор
- отдельный вход с улицы и два со двора.
Преимущества объекта:
- близость станций метро - всего 5 минут пешком от Василеостровской и Спортивной
- парковка - прямо перед помещением
- окружение - район с плотной жилой и общественно-деловой застройкой
- можно сдать в аренду двум арендаторам.
Назначение :
- Розничная торговля (продукты, товары повседневного спроса).
- Услуги : ремонт, ателье, салон красоты, кофейня кофе с собой
- Офис с клиентским входом (юристы, нотариусы, сервис)
- Пункт выдачи заказов (ПВЗ) с отдельным входом и парковкой
- Склад-магазин, студия, шоурум. Объект №1316-20925.
Написать представителю
Марина
Ваша информация в безопасности.
Она будет отправлена только контактному лицу данного объявления.
4-я линия Васильевского острова, дом 51, Санкт-Петербург, Россия
Цена:
14 900 000 руб.
102 055 руб./м²
Общая площадь:146 м²












