Аренда магазина, 915 м² , улица Савушкина 10к2
Марина
контактное лицо
Площадь: 915 м²
Цена аренды:
1 200 000 руб./мес
Цена:
1 312 руб./м²/мес

улица Савушкина, дом
10к2,
Санкт-Петербург,
Россия
м. Черная речка (2 мин.)
- Контактные данные
- +7 (812) 24X-XX-XX
Об объекте
- Район
- Приморский
Описание объекта
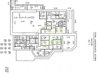
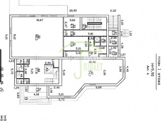
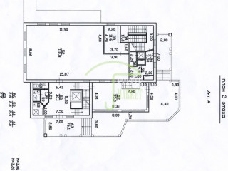
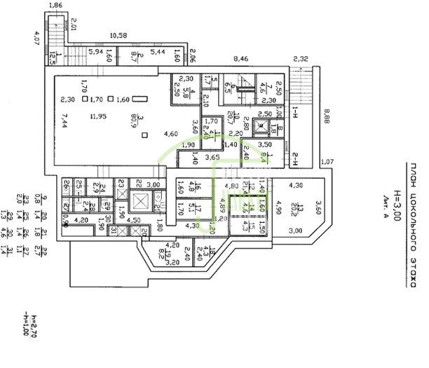
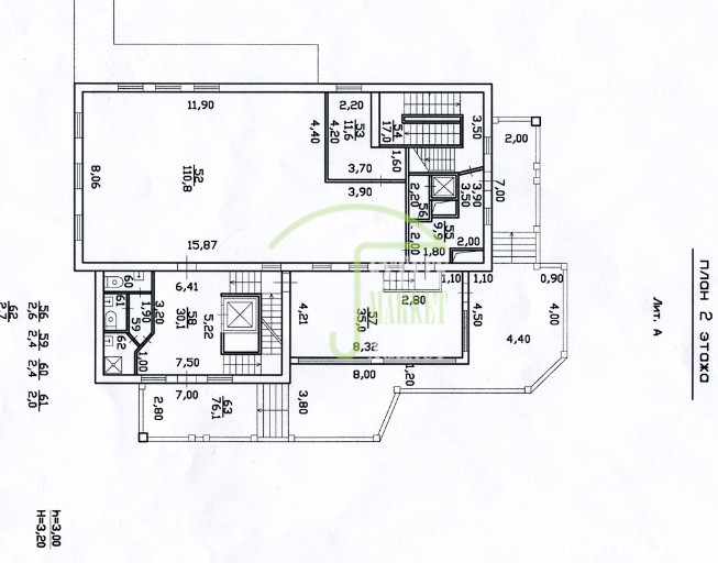
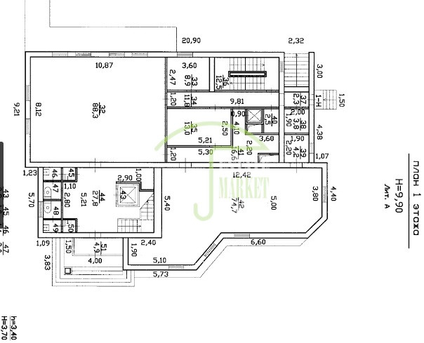
Сдается отдельно стоящее здание с цокольным этажом , площадь здания 915,1 м и дополнительно 2 террасы на 2-м и 3-м этажах ( примерно 240 и 90 м), пассажирский лифт, грузовой лифт, два входа. Земля в собственности под зданием 684 кв.м, здание находится в 87 метрах от станции метро Черная Речка.
Подойдёт под обучение, офис компании, IT-пространство, студию услуг, шоурум, фотостудию, кафе без алкогольной лицензии. Характеристики
свободная планировка
окна на 4 стороны
электрическая мощность 130 кВт, есть газ удобная навигация для клиентов Помещение светлое для своего формата и легко адаптируется под разные задачи бизнеса. Преимущества
много естественного света
близость метро
удобный подъезд и транспортная доступность Запишитесь на просмотр планировка позволяет эффективно организовать пространство под ваш формат работы.
Объект №1316-20940.
Написать представителю
Марина
Ваша информация в безопасности.
Она будет отправлена только контактному лицу данного объявления.
улица Савушкина, дом 10к2, Санкт-Петербург, Россия
Цена аренды:
1 200 000 руб./мес
Общая площадь:915 м²

















