Аренда склада, 337 м² , проезд Энергетиков 9
Площадь: 337 м²
Цена аренды:
134 960 руб./мес
Цена:
401 руб./м²/мес

проезд Энергетиков, дом
9,
Ульяновск,
Россия
- Контактные данные
- +7 (985) 32X-XX-XX
Описание объекта
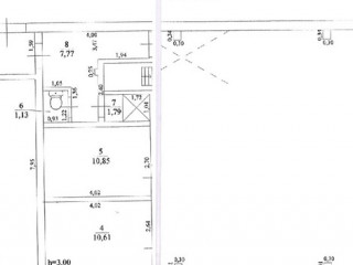
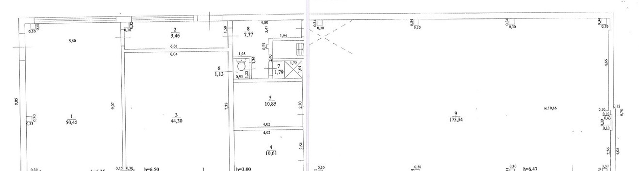
В аренду под СТО, мелкое производство, мастерскую, любое коммерческое использование – 337,4 м2.
Отдельно стоящее здание на территории производственной базы периметр огорожен, видеонаблюдение, КПП, охрана круглосуточно. Доступ 24/7.
Характеристики:
- Высота потолка – 6,5м
- Кран-балка – 2 тонны (аренда обговаривается отдельно)
- Сетевое напряжение – 220В, 380В.
- Санузел, душевая комната.
- Есть отдельные помещения для складов с отдельным входом, раздевалки, комнаты приёма пищи.
- Пол бетонный, есть приямки.
- Отопление автономное, газовая котельная.
Коммунальные услуги оплачиваются отдельно, эл/эн по счётчику, отопление рассчитывается пропорционально занимаемой площади.
Готовы подготовить площадь под запрос арендатора.
Аренда от собственника.
Звоните, договоримся о показе![#7321514#]
проезд Энергетиков, дом 9, Ульяновск, Россия
Цена аренды:
134 960 руб./мес
Общая площадь:337 м²















