Аренда склада, 888 м² , Советская улица 1
Площадь: 888 м²
Цена аренды:
266 100 руб./мес
Цена:
300 руб./м²/мес

Советская улица, дом
1,
Струнино,
Владимирская область
- Контактные данные
- +7 (958) 78X-XX-XX
Описание объекта
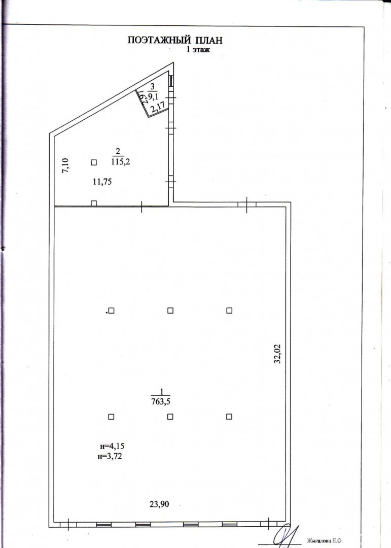
Сдается в аренду склад площадью 887,8 кв.м в прямую аренду на любой срок. Склад располагается в 1-этажном здании. Номер налоговой объекта - 3300, юридический адрес не предоставляется.
Склад располагается на 1 этаже, на полу плитка. Внутри типовой ремонт, вход в помещение - отдельный с улицы, общая площадь здания 887 м2, участок находится в аренде, здание полностью функционирует.
На складе есть электричество, общей мощностью 120 кВт, есть вода, приточная вентиляция, автономное отопление.
Парковка на территории объекта, парковка на 30 машиномест, парковка предоставляется бесплатно.[#7649210#]
Советская улица, дом 1, Струнино, Владимирская область
Цена аренды:
266 100 руб./мес
Общая площадь:888 м²

















