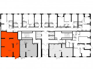
Продажа помещения свободного назначения, 101 м² , улица Борисенко 48к2
Площадь: 101 м²
Цена продажи:
13 591 160 руб.
Цена:
134 566 руб./м²

улица Борисенко, дом
48к2,
Владивосток,
Россия
- Контактные данные
- +7 (495) 02X-XX-XX
Описание объекта
Продаётся нежилое помещение свободного назначения в новом жилом районе Борисенко 48 от ПИК. Открытая планировка, витринное остекление, удобный вход на уровне земли. Помещение (номер на площадке: №8) расположено по адресу: Россия, Приморский край, городской округ Владивостокский, г. Владивосток, ул. Борисенко, в районе д. 48, корпуса 1,2, 3,4. Ввод в эксплуатацию 4 квартал 2026. Продажа напрямую от застройщика. Преимущества помещения:
- Высокий трафик и проходимость
- Безбарьерная среда: никаких лишних порогов, лестниц и крутых пандусов
- Отдельный вход
- Витринное остекление
- Высокие потолки
- Универсальное помещение, мы не ограничиваем вас в выборе типа деятельности: помещения одинаково хорошо подойдут под салон красоты, химчистку или уютное кафе
- Открытая планировка и возможность объединения помещений
- Быстрая окупаемость бизнеса, обеспечена большим количеством жителей
«Борисенко 48» - небольшой квартал в Первомайском районе, в 15 минутах пути на автомобиле от центра Владивостока. С верхних этажей откроется живописный вид на город и сопки.
В проекте всего четыре дома и подземный паркинг, в который можно будет спуститься на лифте. Высота домов от 17 до 30 этажей - благодаря переменной этажности солнце будет лучше освещать двор и квартиры.
В «Борисенко 48» много разных планировок, и каждая продумана так, чтобы вы могли максимально эффективно использовать жилую площадь. Отделку можно выбрать - готовую или предчистовую.
На первых этажах откроются пекарни, кафе, магазины и другие сервисы - это удобно, когда внезапно закончится хлеб или захочется побаловать себя горячим кофе. Из каждого дома будет выход в уютный двор-парк - это закрытая территория для отдыха, где растут цветы и деревья, оборудованы детские и спортивные площадки. Рядом с «Борисенко 48» появится также детский сад для 150 малышей.
В пешей доступности есть всё необходимое для комфортной жизни: школы, детские сады, поликлиника и магазины. До крупных торговых центров «Калина Молл» и «Луговая», а также супермаркета «Реми» - всего 5 минут на машине. А до озера на Сафонова, которое отлично подходит для прогулок и отдыха, можно дойти пешком за 9 минут. Живописная Леопардовая набережная - в 10 минутах на автомобиле. Из квартала можно будет выехать как на улицу Борисенко, так и на улицу Сафонова.[#8062561#]
улица Борисенко, дом 48к2, Владивосток, Россия
Цена:
13 591 160 руб.
134 566 руб./м²
Общая площадь:101 м²






