Аренда офиса, 937 м² , Старокубанская улица
Площадь: 937 м²
Цена аренды:
936 500 руб./мес
Цена:
1 000 руб./м²/мес

Старокубанская улица,
Краснодар,
Россия
- Контактные данные
- +7 (938) 50X-XX-XX
Об объекте
- Округ
- Карасунский
Описание объекта
Арт. 107419750
Аренда отдельно стоящего здания в Карасунском округе.
В одной линейке с ЖК Элегант, на против ЖК Патрики и ЖК Режиссеротдельно стоящее здание
фасад на улицу
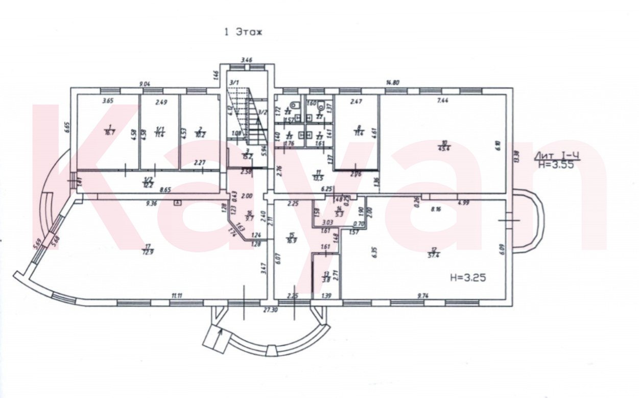
общая площадь 936,5 кв.м.
3 этажа
4 отдельные входные группы
место для вывески
пожарные выходы
приточно-вытяжная вентиляция
система кондиционирования воздуха
автоматическая система пожарной сигнализации проверена, Акт от 05.02.26.
сан. узел на каждом этаже
достойный ремонт
сдается без мебели
место для приема пищи
спорт зал с душевой
потолки 3,20 м.
коммуникации центральные
2 независимых электрических ввода
на каждом этаже свой распределительный электрический щит
мощность 100 кВт.
на потолках смонтированы шумоизоляционные панели (бафы).
охрана
пропускная система
парковка на фасаде городская
несколько парко мест во дворе
В здании готовые СКФ (структурированные кабельные системы), готовая компьютерная сеть. Имеется полностью оборудованное серверное помещение, изолированное специальной огнеупорной противопожарной дверью.
Здание оборудовано системой СКУД (система управления и контроля доступа), а также системой СВН (видеонаблюдения). На инженерные системы имеются проекты.
Возможность круглосуточного режима работы.
Отлично подойдет под офис компании, детский центр, медицину.
Ранее размещалась IT компания.
Без комиссии для арендатора!
Звоните! Оперативный показ в удобное время.
Старокубанская улица, Краснодар, Россия
Цена аренды:
936 500 руб./мес
Общая площадь:937 м²




































