Аренда офиса, 606 м² , улица Орджоникидзе
Площадь: 606 м²
Цена аренды:
1 030 710 руб./мес
Цена:
1 701 руб./м²/мес

улица Орджоникидзе,
Краснодар,
Россия
- Контактные данные
- +7 (938) 50X-XX-XX
Об объекте
- Округ
- Центральный
Описание объекта
Арт. 111884367
Сдаются в аренду офисы в Центре города.
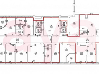
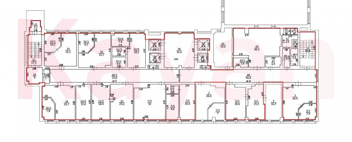
Офисное здание, 12 этажей. обособленный этаж зданиякабинетная системакоммунальные платежи включены!уборка 2 раза в неделюэлектричество включено3 этажкомната для приема пищиобщая площадь 606,3 кв.м.сан. узел на этажеремонт16 кабинетовсплит системымебельбалкон3 лифтакруглосуточная охранапарковка во дворе (абонемент)видеонаблюдениевход по пропускам
Есть возможность арендовать половину этажа.
Локация преимущественно банковской сферы.
Звоните! Оперативный показ в удобное время!
улица Орджоникидзе, Краснодар, Россия
Цена аренды:
1 030 710 руб./мес
Общая площадь:606 м²






















