Аренда помещения свободного назначения, 83 м² , Свободный проспект 57
Площадь: 83 м²
Цена аренды:
100 000 руб./мес
Цена:
1 205 руб./м²/мес

Свободный проспект, дом
57,
Красноярск,
Россия
- Контактные данные
- +7 (992) 71X-XX-XX
Описание объекта
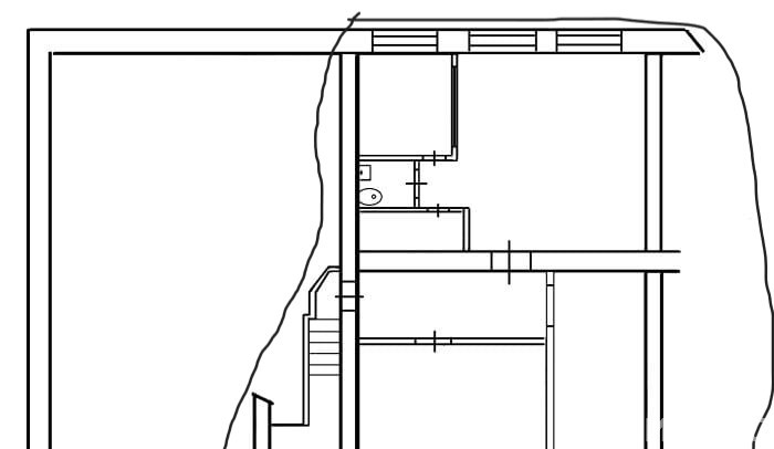
Сдается помещение свободного назначения 83 м2 на 1 этаже | Отдельный вход с улицы | Под аптеку, розницу, офис
Идеальная площадка для бизнеса с отдельным входом и готовностью к работе. Прямой договор с собственником.
О помещении:
Площадь: 83 м2 на 1 этаже
Высота потолков: 2.6 м
Планировка: 4 изолированных помещения
Отделка: типовая (линолеум, подготовлено к использованию)
Окна: на две стороны (во двор и на улицу)
Ключевое преимущество: отдельный вход с улицы — полная автономность
Условия аренды:
Прямая аренда от собственника (без комиссий)
Срок: от 1 года
Гибкие условия: возможны арендные каникулы
Оплата: предоплата за 1 месяц
Преимущества для бизнеса:
Отдельный вход — прямой доступ для клиентов и партнеров
Готовая планировка под аптеку, розничный магазин, офис или сервис
Удобное расположение — окна на улицу привлекают внимание клиентов
Быстрый старт — не нужны дополнительные вложения в ремонт
Особенности:
Свободное назначение — под любой законный вид деятельности
Естественное освещение через окна на две стороны
Тихая дворовая сторона и активная уличная — оптимальный баланс
Звоните, чтобы договориться о просмотре![#7974753#]
Свободный проспект, дом 57, Красноярск, Россия
Цена аренды:
100 000 руб./мес
Общая площадь:83 м²











