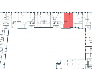
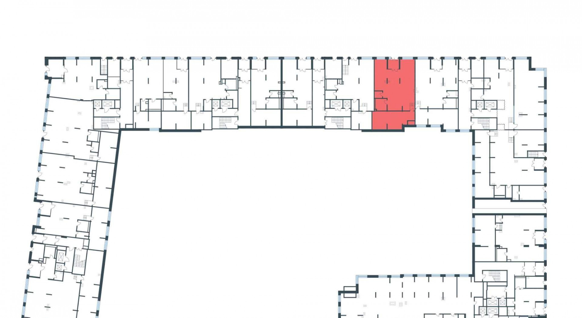
Аренда помещения свободного назначения, 115 м² , улица Василия Ощепкова 2
Площадь: 115 м²
Цена аренды:
155 655 руб./мес
Цена:
1 354 руб./м²/мес

улица Василия Ощепкова, дом
2,
Москва,
Россия
м. Коммунарка (12 мин.),
м. Ольховая (27 мин.),
м. Бунинская аллея (54 мин.)
- Контактные данные
- +7 (495) 02X-XX-XX
Об объекте
- Административный округ
- Новомосковский административный округ
Описание объекта
Предлагается коммерческое помещение площадью 115,3 м2 на 1-м этаже 15-этажного жилого дома в ЖК «Москвичка».
Основные преимущества:
отдельный вход;
место под вывеску;
витринное остекление;
круглосуточный доступ;
помещение без ремонта, что позволяет обустроить его по своему вкусу и требованиям бизнеса;
метро в пешей доступности - от 7 минут до м. Коммунарка;
помещение находится в жилом комплексе комфорт-класса;
развитый район с насыщенной инфраструктурой и активным пешеходным трафиком.
Технические характеристики: наличие всех необходимых коммуникаций - водоснабжение, канализация, электроснабжение.
Условия: помещение предоставляется без посредников, напрямую от собственника - компании «Аструм Недвижимость», которая управляет коммерческой инфраструктурой жилых комплексов ГК «Гранель».
ЖК «Москвичка» - это уютная локация, рассчитанная на проживание более 12 тысяч человек, большинство из которых - молодые и активные люди в возрасте от 20 до 50 лет. Уже сейчас в комплексе успешно работают множество бизнесов и якорные арендаторы. Среди них: продуктовые магазины, кафе, салоны красоты и другие предприятия сферы услуг.
Расположение комплекса в 700 метрах от станции метро «Коммунарка» обеспечивает отличный транспортный доступ, что позволяет жителям микрорайона добираться до центра столицы быстро и удобно. Весь микрорайон активно развивается и расширяется, создавая отличные перспективы для бизнеса.
Наши менеджеры помогут вам подобрать наиболее подходящее помещение для вашего бизнеса. Звоните и узнайте подробности![#4471957#]
улица Василия Ощепкова, дом 2, Москва, Россия
Цена аренды:
155 655 руб./мес
Общая площадь:115 м²















