Продажа отдельно стоящего здания, 2265 м² , 16-я Парковая улица 21к1
Площадь: 2265 м²
Цена продажи:
273 900 000 руб.
Цена:
120 928 руб./м²

16-я Парковая улица, дом
21к1,
Москва,
Россия
м. Первомайская
Об объекте
- Административный округ
- Восточный административный округ
Описание объекта
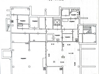
==ЛОТ 221700 ==Продажа административного здания общей площадью: 2 240 кв. м. Год постройки 1942 г. Четыре наземных этажа без подвала. Земельный участок пятно застройки в аренде у города до 2035 года. ври: для эксплуатации административного здания. Высота потолка от 3 до 3, 2 метра. Центральные коммуникации. Стены: кирпичные. Перекрытия: смешанные. Реконструкция здания произведена в 2 000 г. На данный момент здание сдано в аренду, договора краткосрочные. мап по запросу. Удобная транспортная доступность. Ст. м. "Шоссе Энтузиастов" в 20 минутах пешком.
16-я Парковая улица, дом 21к1, Москва, Россия
Цена:
273 900 000 руб.
120 928 руб./м²
Общая площадь:2 265 м²




















