Аренда офиса, 730 м² , Летниковская улица 2с1
Площадь: 730 м²
Цена аренды:
3 345 833 руб./мес
Цена:
4 584 руб./м²/мес

Летниковская улица, дом
2с1,
Москва,
Россия
м. Павелецкая (6 мин.)
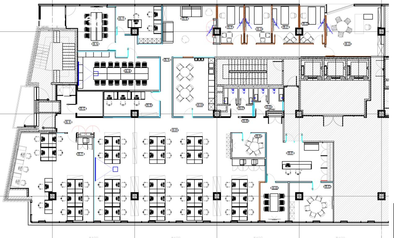
Об объекте
- Этаж расположения помещения
- 5 этаж
- Административный округ
- Центральный административный округ
Описание объекта
==ЛОТ 222636 == ОТ СОБСТВЕННИКА, БЕЗ КОМИССИИ. Предлагается в аренду офисное помещение, полностью готовое к эксплуатации. В здании установлены системы центрального кондиционирования и приточно-вытяжной вентиляции. В кабинетах проведена инфраструктура для телефонии и интернет-коммуникаций. Техническое оснащение соответствует нормам пожарной безопасности и санитарным требованиям. Готовность к въезду 01. 03. 2026
Летниковская улица, дом 2с1, Москва, Россия
Цена аренды:
3 345 833 руб./мес
Общая площадь:730 м²











