Продажа производственного помещения, 1800 м² , Вишнёвая улица 7с128
Площадь: 1800 м²
Цена продажи:
358 000 000 руб.
Цена:
198 889 руб./м²

Вишнёвая улица, дом
7с128,
Москва,
Россия
м. Краснопресненская
Об объекте
- Этаж расположения помещения
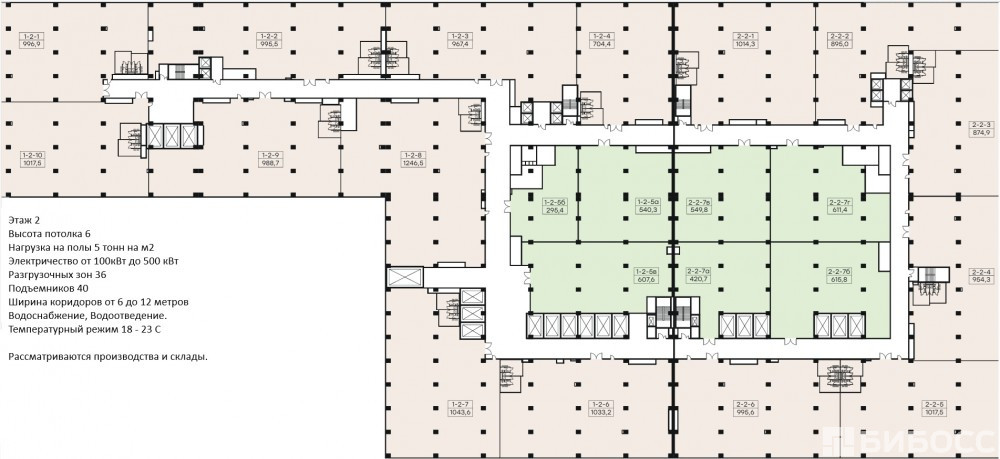
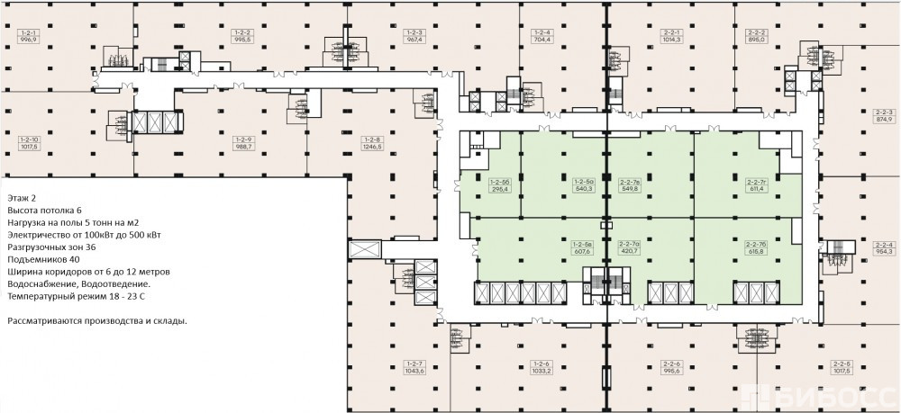
- 2 этаж
- Административный округ
- Северо-Западный административный округ
Описание объекта
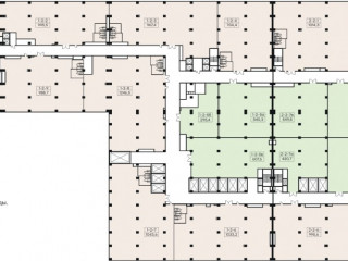
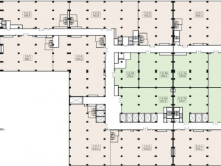
Номер ЛОТА: 2176. Производственно складское помещение в новом инновационном кластере. Высота потолка 6 метров каждого этажа. Нагрузка на пол 5 тонн на квадратный метр.
Помещение оборудовано:
вентиляция, спринклерная система пожаротушения и дымоудаления, канализация и слаботочные системы.
На этаже предусмотрены: 18 промышленных лифтов, один многотонный суперлифт, 36 погрузочно-разгрузочных доков.
На территории более 400 парковочных мест, стоянка для фур, удобные зоны маневрирования.
Профессиональная управляющая компания с расширенным функционалом, ориентированным на эффективную эксплуатацию:
- Эксплуатация инженерных систем
- Подключение к инженерным системам
- Обеспечение пожарной безопасности
- Охрана и видеонаблюдение
- Service desk тех поддержки в приложении
- Профессиональный клининг
- Авизация
- WMS (автоматизация приемки, отгрузки, инвентаризации и логистик на территории)
- Аренда операторов и бригад погрузки
- Контроль графика въезда-выезда транспорта
- Управление загрузкой и маршрутизация в доки
- Диспетчеризация грузовых лифтов, управление загрузкой
- Управление паркингом
Написать представителю
Николай Зорков
Ваша информация в безопасности.
Она будет отправлена только контактному лицу данного объявления.
Вишнёвая улица, дом 7с128, Москва, Россия
Цена:
358 000 000 руб.
198 889 руб./м²
Общая площадь:1 800 м²



