Аренда помещения свободного назначения, 120 м² , Анадырский проезд 63А
Площадь: 120 м²
Цена аренды:
300 000 руб./мес
Цена:
2 500 руб./м²/мес

Анадырский проезд, дом
63А,
Москва,
Россия
м. Бабушкинская
Об объекте
- Этаж расположения помещения
- 1 этаж
- Административный округ
- Северо-Восточный административный округ
Описание объекта
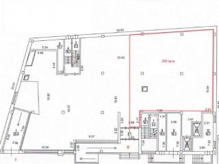
==ЛОТ 223205 == ОТ СОБСТВЕННИКА, БЕЗ КОМИССИИ. Помещение свободного назначения на 1м этаже торгового центра. Первая линия. Сдается в аренду часть помещения площадью 250 м2. Высота потолков на первом этаже 3, 7 м, электрическая мощность 50 кВт с возможностью увеличения. Рассматриваем продуктовый магазин, товары народного потребления, общепит, выпечку.
Анадырский проезд, дом 63А, Москва, Россия
Цена аренды:
300 000 руб./мес
Общая площадь:120 м²
















