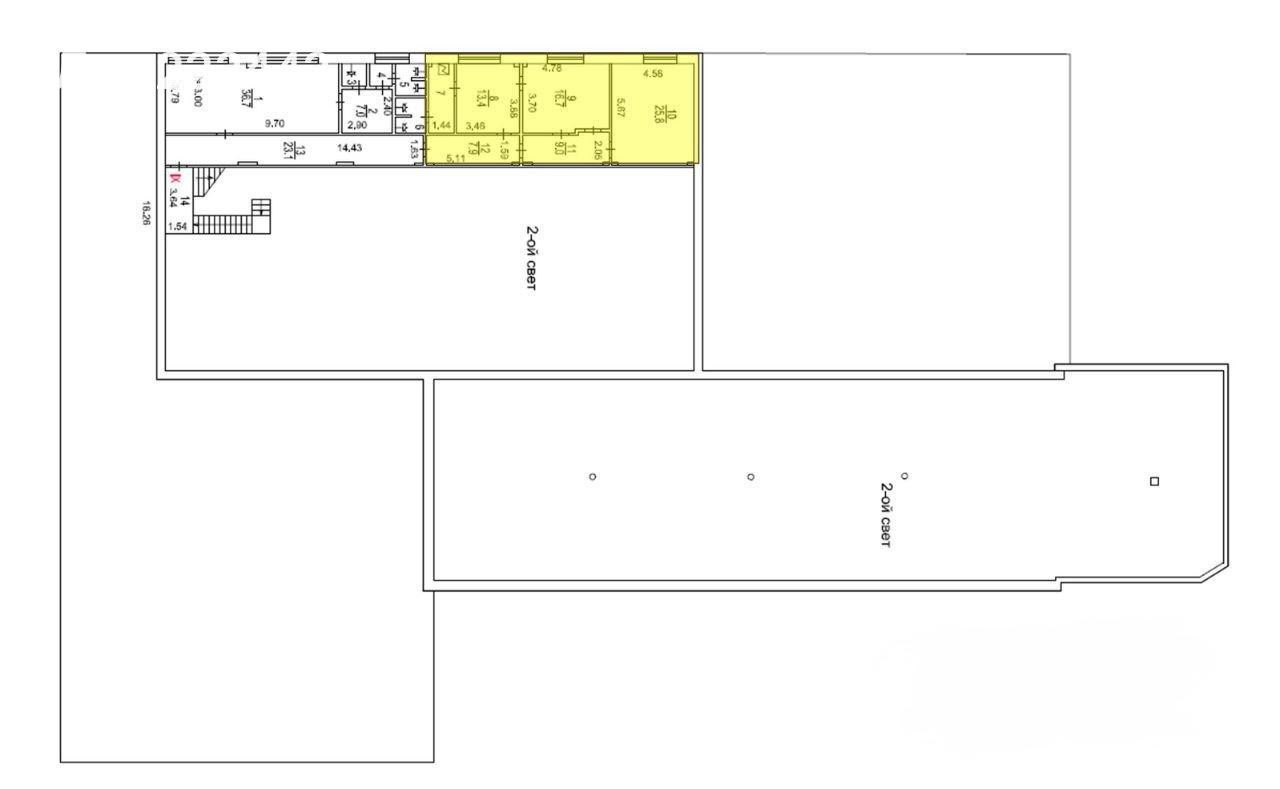
Аренда помещения свободного назначения, 266 м² , Дмитровское шоссе 58с33
Площадь: 266 м²
Цена аренды:
450 100 руб./мес
Цена:
1 693 руб./м²/мес

Дмитровское шоссе, дом
58с33,
Москва,
Россия
м. Верхние Лихоборы
Об объекте
- Этаж расположения помещения
- 1 этаж
- Административный округ
- Северный административный округ
Описание объекта
==ЛОТ 223443 == ОТ СОБСТВЕННИКА, БЕЗ КОМИССИИ. Предлагается в аренду производственное помещение на 1 и 2 этаже. Прямой договор с собственником. Предоставляются арендные каникулы. Подходит под Лофт, фотостудию,склад, сервисное обслуживание автомобилей, производство, мастерская. Оперативный показ. Есть другие планировки.
Дмитровское шоссе, дом 58с33, Москва, Россия
Цена аренды:
450 100 руб./мес
Общая площадь:266 м²


















