Аренда помещения свободного назначения, 1360 м² , Ступинский проезд 1с25
Площадь: 1360 м²
Цена аренды:
1 822 500 руб./мес
Цена:
1 341 руб./м²/мес

Ступинский проезд, дом
1с25,
Москва,
Россия
Об объекте
- Этаж расположения помещения
- 1 этаж
- Административный округ
- Южный административный округ
Описание объекта
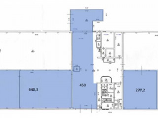
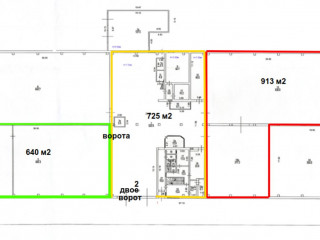
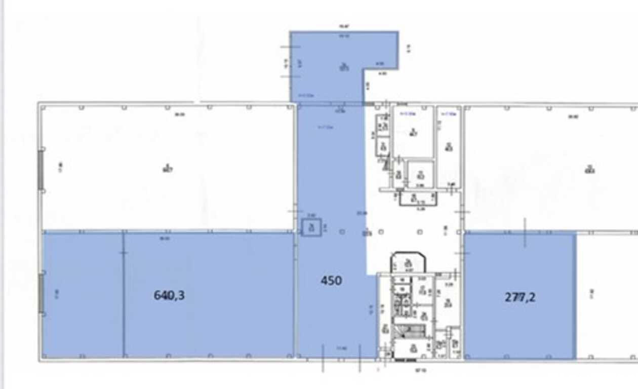
==ЛОТ 223453 == ОТ СОБСТВЕННИКА, БЕЗ КОМИССИИ. Сдаем производственно складское помещение, первый этаж. Отдельно стоящее здание на охраняемой территории. Ворота на нуле. Пропускной режим 24/7. Видео наблюдение по периметру площадки. Помещение с отоплением. . Первые 30 минут бесплатно, Заезд на территорию платный. Возможно деление как на схеме. Территория не попадает под КРТ, что для сегодняшнего дня редкость. Эксплуатация оплачивается отдельно. Готовы дать каникулы на въезд и льготные условия. Возможно деление по блокам, схема прилагается.
Ступинский проезд, дом 1с25, Москва, Россия
Цена аренды:
1 822 500 руб./мес
Общая площадь:1 360 м²



























