Аренда офиса, 114 м² , Михневская улица 8
Площадь: 114 м²
Цена аренды:
198 800 руб./мес
Цена:
1 744 руб./м²/мес

Михневская улица, дом
8,
Москва,
Россия
м. Царицыно (26 мин.),
м. Кантемировская (27 мин.),
м. Домодедовская (27 мин.)
- Контактные данные
- +7 (499) 28X-XX-XX
Об объекте
- Административный округ
- Южный административный округ
Описание объекта
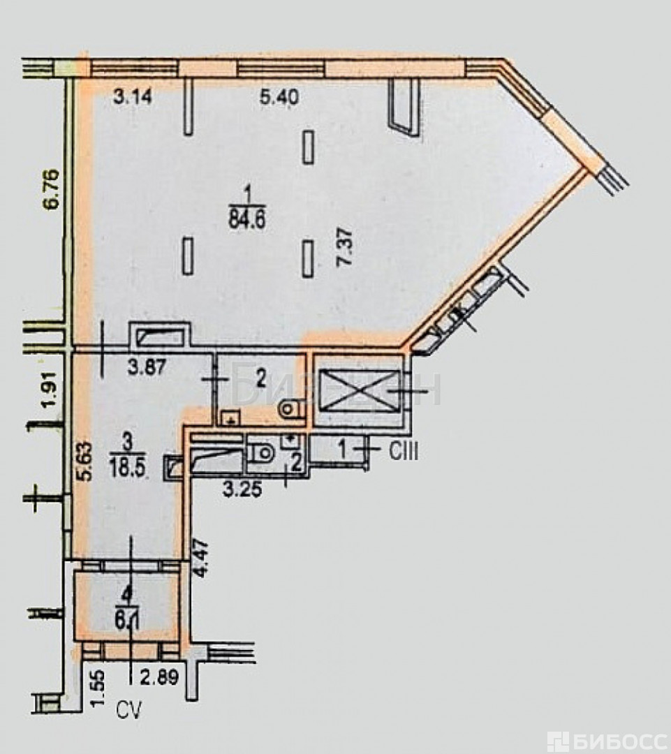
Предлагается в аренду офис с отдельным входом, по адресу ул. Михневская, д. 8, 113.6 кв.м. Этаж: 1. Налогообложение: НДС. Условия договора: 11 месяцев, предоплата 1 месяц. В арендную ставку включено: НДС, охрана здания. КУ не входят в ставку. Здание работает: круглосуточно, без выходных. Интернет провайдеры: провайдеры по желанию. Парковка: организованный паркинг отсутсвует. Вход в здание: для клиентов - свободный, для арендаторов - свободный. Показы с 10.00 до 18.00 по будням. Получите подробную информацию об офисе. Отправим ее на почту или по Whatsapp.. Звоните, мы оперативно организуем просмотр помещения в удобную для вас дату и ответим на все интересующие вопросы. Договор аренды заключаете с собственником помещения. Для вас наши услуги абсолютно бесплатны — их оплачивают бизнес-центры. Без надбавки к итоговой стоимости аренды.
Написать представителю
Артём Мазурчак
Ваша информация в безопасности.
Она будет отправлена только контактному лицу данного объявления.
Михневская улица, дом 8, Москва, Россия
Цена аренды:
198 800 руб./мес
Общая площадь:114 м²










