Аренда помещения свободного назначения, 572 м² , Большой Саввинский переулок 9с2
Площадь: 572 м²
Цена аренды:
1 190 625 руб./мес
Цена:
2 082 руб./м²/мес

Большой Саввинский переулок, дом
9с2,
Москва,
Россия
м. Киевская (14 мин.)
Об объекте
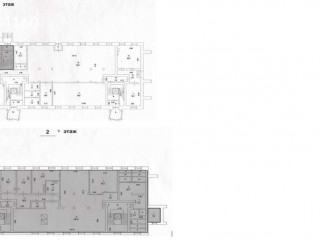
- Этаж расположения помещения
- 2 этаж
- Административный округ
- Центральный административный округ
Описание объекта
==ЛОТ 224160 == ОТ СОБСТВЕННИКА, БЕЗ КОМИССИИ. Предлагаем в аренду производственное помещение, расположенное в Москве по адресу: Большой Саввинский переулок, 9с2. Это пространство общей площадью 572 м? находится на втором этаже восьмиэтажного административного здания. Помещение отлично подходит для различных видов деятельности, таких как бытовые услуги, ателье, медицинские центры и многое другое. Высота потолков составляет 2,9 метра, что создает комфортные условия для работы. Объект обеспечен круглосуточным доступом и охраной, имеется парковка для удобства ваших сотрудников и клиентов. Внутри предусмотрены четыре мокрые точки, а центральное отопление гарантирует комфортную температуру в течение всего года. Станция метро "Киевская" расположена в 14 минутах пешком, что обеспечивает удобное транспортное сообщение. Район отличается развитой инфраструктурой и близостью к популярным местам города, что предоставляет дополнительные преимущества для ведения бизнеса. Прямое сотрудничество с собственником позволяет быстро решить все вопросы, связанные с арендой.
Большой Саввинский переулок, дом 9с2, Москва, Россия
Цена аренды:
1 190 625 руб./мес
Общая площадь:572 м²

















